Maison neuve à
Achères (18250) Référence : FH2448750_4

Prix du projet : Maison avec Terrain

prix 147 689 €

  • 3 pièces
  • 2 chambres
  • Surface maison 70 m2

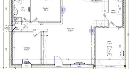
VENTE d'une maison F3 (70 m²) à Achères
MAISON 3 PIÈCES NEUVE - PROCHE DE BOURGES
À vendre : à deux pas de Bourges, votre agence Maisons Bruno Petit MJB Bourges est ravie de vous présenter cette maison de 3 pièces de plain-pied de 70 m² à Achères (18250).
Conçue de plain-pied, elle dispose de deux chambres, d'une cuisine et d'une salle de bains. Cette maison est neuve.
Le terrain du bien s'étend sur 2 500 m².
On trouve une école élémentaire dans le quartier.
Elle est à vendre pour la somme de 147 689 €.
Contactez Fabien HELLELI (02-48-50-26-25) pour tout renseignement sur le bien ou sur les modalités de vente. Donnez vie à vos projets immobiliers avec Maisons Bruno Petit MJB Bourges.

Mentions légales

Terrain proposé par un partenaire foncier selon disponibilités et autorisation de publicité au prix de 29 000 €. Hors droit d'enregistrement et frais de notaire. Terrain + Maison proposés au prix de 147 689 € (Hors branchements et raccordements, papiers peints, peintures, revêtement de sol dans les chambres. Tarif modifiable sans préavis). Etiquette énergie : A. Différents modèles disponibles pour ce terrain. Assurances et garanties du constructeur (RC professionnelle, décennale, dommage ouvrage, garantie de remboursement de l'acompte, livraison à prix et délai convenu) : https://www.maisons-brunopetit.fr/mentions-legales/.

Contactez l'agence de Bourges

02 48 50 26 25

    * Champs obligatoires

    Vos informations sont traitées par HEXAOM et transmises à un conseiller commercial qui vous contactera afin de répondre à votre demande. Les plans et images présentés sur notre site sont la propriété d’HEXAOM et ne peuvent pas être reproduits sans son accord. Pour retrouver notre politique de protection des données personnelles et exercer vos droits conformément à la « loi informatique et liberté » cliquez-ici.