Maison neuve à
Achères (18250) Référence : FH2448750_8

Prix du projet : Maison avec Terrain

prix 445 629 €

  • 6 pièces
  • 4 chambres
  • Surface maison 180 m2

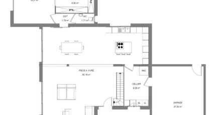
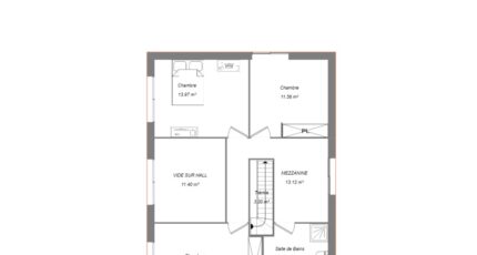
Maison de 6 pièces (180 m²) en vente à Achères
PROCHE DE BOURGES - MAISON 6 PIÈCES NEUVE
En vente : à 23 km de Bourges, votre agence Maisons Bruno Petit MJB Bourges est ravie de vous présenter cette maison de 6 pièces de 180 m² à Achères (18250). Elle se divise en quatre chambres, une cuisine et deux salles de bains.
Le terrain du bien s'étend sur 2 500 m².
C'est une maison de 2 niveaux. Elle est neuve.
Il y a une école élémentaire dans le quartier.
Son prix de vente est de 445 629 €.
Contactez notre constructeur (Fabien HELLELI : 02-48-50-26-25) pour obtenir de plus amples informations sur cette maison ou sur les démarches à suivre. Maisons Bruno Petit MJB Bourges vous accompagne dans tous vos projets immobiliers et à toutes les étapes de l'achat.

Mentions légales

Terrain proposé par un partenaire foncier selon disponibilités et autorisation de publicité au prix de 29 000 €. Hors droit d'enregistrement et frais de notaire. Terrain + Maison proposés au prix de 445 629 € (Hors branchements et raccordements, papiers peints, peintures, revêtement de sol dans les chambres. Tarif modifiable sans préavis). Etiquette énergie : A. Différents modèles disponibles pour ce terrain. Assurances et garanties du constructeur (RC professionnelle, décennale, dommage ouvrage, garantie de remboursement de l'acompte, livraison à prix et délai convenu) : https://www.maisons-brunopetit.fr/mentions-legales/.

Contactez l'agence de Bourges

02 48 50 26 25

    * Champs obligatoires

    Vos informations sont traitées par HEXAOM et transmises à un conseiller commercial qui vous contactera afin de répondre à votre demande. Les plans et images présentés sur notre site sont la propriété d’HEXAOM et ne peuvent pas être reproduits sans son accord. Pour retrouver notre politique de protection des données personnelles et exercer vos droits conformément à la « loi informatique et liberté » cliquez-ici.