Maison neuve à
Aigurande (36140) Référence : FR2415311_1

Prix du projet : Maison avec Terrain

prix 140 584 €

  • 4 pièces
  • 3 chambres
  • Surface maison 85 m2

Aigurande : maison de 4 pièces (85 m²) à vendre
IDÉALEMENT SITUÉE - MAISON 4 PIÈCES NEUVE
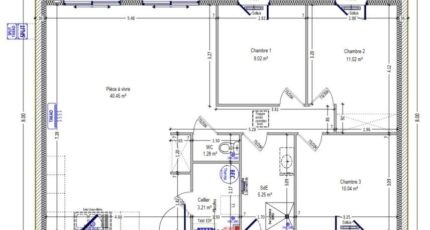
En vente : nous vous présentons cette maison de 4 pièces de plain-pied de 85 m² idéalement située dans Aigurande (36140).
Son intérieur se divise en trois chambres, une cuisine et une salle de bains. La maison est neuve.
Le terrain de la propriété s'étend sur 832 m².
Cette maison se situe dans un secteur convoité. Trois établissements scolaires sont implantés à moins de 10 minutes à pied, tout comme, parmi lesquels l'École Élémentaire Jean Moulin et le Collège Frédéric Chopin. Il y a un tennis, trois boulangeries, des commerces, un supermarché, une épicerie et un bureau de poste à quelques minutes.
Elle est à vendre pour la somme de 140 584 €.
Contactez notre agence (RUBIO Franck : °6-30-49-64-43) pour plus de renseignements sur le bien. Maisons Bruno Petit MJB Châteauroux vous accompagne dans toutes vos démarches et dans tous vos projets immobiliers.

Mentions légales

Terrain proposé par un partenaire foncier selon disponibilités et autorisation de publicité au prix de 9 984 €. Hors droit d'enregistrement et frais de notaire. Terrain + Maison proposés au prix de 130 600 € (Hors branchements et raccordements, papiers peints, peintures, revêtement de sol dans les chambres. Tarif modifiable sans préavis). Etiquette énergie : A. Différents modèles disponibles pour ce terrain. Assurances et garanties du constructeur (RC professionnelle, décennale, dommage ouvrage, garantie de remboursement de l'acompte, livraison à prix et délai convenu) : https://www.maisons-brunopetit.fr/mentions-legales/.

Contactez l'agence de Châteauroux

02 54 22 66 24

    * Champs obligatoires

    Vos informations sont traitées par HEXAOM et transmises à un conseiller commercial qui vous contactera afin de répondre à votre demande. Les plans et images présentés sur notre site sont la propriété d’HEXAOM et ne peuvent pas être reproduits sans son accord. Pour retrouver notre politique de protection des données personnelles et exercer vos droits conformément à la « loi informatique et liberté » cliquez-ici.