Maison neuve à
Aigurande (36140) Référence : KG2470853_2

Prix du projet : Maison avec Terrain

prix 153 860 €

  • 4 pièces
  • 3 chambres
  • Surface maison 85 m2

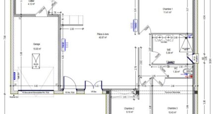
Projet de construction d'une Maison de 4 pièces (85 m²) à Aigurande
IDÉALEMENT SITUÉE - MAISON 4 PIÈCES NEUVE
Nous sommes ravis de vous présenter cette maison de 4 pièces de plain-pied de 85 m² et de 750 m² de terrain à vendre, idéalement située dans Aigurande (36140). Elle dispose de trois chambres, d'une cuisine et d'une salle de bains.
Cette maison est neuve.
La maison est située dans un quartier prisé. Trois établissements scolaires sont implantés à moins de 10 minutes à pied, tout comme dont l'École Élémentaire Jean Moulin et le Collège Frédéric Chopin. Il y a un tennis, deux commerces, un bureau de poste, deux boucheries-charcuteries et une épicerie dans les environs.
Elle est à vendre pour la somme de 153 860 €.
N'hésitez pas à prendre contact avec Kevin GRIMAUD (*6-22-14-89-67) pour toute question sur la maison, sur les démarches à suivre ou sur les modalités de vente. Maisons Bruno Petit MJB Châteauroux vous accompagne à toutes les étapes de l'achat et dans tous vos projets immobiliers.

Mentions légales

Terrain proposé par un partenaire foncier selon disponibilités et autorisation de publicité au prix de 8 460 €. Hors droit d'enregistrement et frais de notaire. Terrain + Maison proposés au prix de 153 860 € (Hors branchements et raccordements, papiers peints, peintures, revêtement de sol dans les chambres. Tarif modifiable sans préavis). Etiquette énergie : A. Différents modèles disponibles pour ce terrain. Assurances et garanties du constructeur (RC professionnelle, décennale, dommage ouvrage, garantie de remboursement de l'acompte, livraison à prix et délai convenu) : https://www.maisons-brunopetit.fr/mentions-legales/.

Contactez l'agence de Châteauroux

02 54 22 66 24

    * Champs obligatoires

    Vos informations sont traitées par HEXAOM et transmises à un conseiller commercial qui vous contactera afin de répondre à votre demande. Les plans et images présentés sur notre site sont la propriété d’HEXAOM et ne peuvent pas être reproduits sans son accord. Pour retrouver notre politique de protection des données personnelles et exercer vos droits conformément à la « loi informatique et liberté » cliquez-ici.