Maison neuve à
Ambrault (36120) Référence : KG2297023_1

Prix du projet : Maison avec Terrain

prix 162 790 €

  • 4 pièces
  • 3 chambres
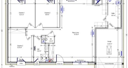
  • Surface maison 85 m2

Ambrault : maison T4 (85 m²) en vente
EMPLACEMENT PRIVILÉGIÉ - MAISON 4 PIÈCES NEUVE
À vendre : à quelques kilomètres de Châteauroux, nous sommes ravis de vous proposer cette maison de 4 pièces de plain-pied de 85 m² et de 892 m² de terrain, bénéficiant d'un emplacement privilégié dans Ambrault (36120). Conçue de plain-pied, elle compte trois chambres, une cuisine et une salle de bains.
Cette maison est neuve.
La maison est située dans un secteur convoité. On trouve l'École Primaire Gérard Thomzeau à moins de 10 minutes à pied et une crèche. Il y a un accès à la nationale N151 à 20 km. Il y a un tennis et une boucherie-charcuterie à quelques minutes à peine.
Son prix de vente est de 162 790 €.
N'hésitez pas à prendre contact avec notre agence (GRIMAUD Kevin : 06-22-14-89-67) pour toute information sur la maison, sur les modalités de vente ou sur les démarches à suivre. Maisons Bruno Petit MJB Châteauroux vous accompagne dans tous vos projets immobiliers et à toutes les étapes de votre projet.

Mentions légales

Terrain proposé par un partenaire foncier selon disponibilités et autorisation de publicité au prix de 20 840 €. Hors droit d'enregistrement et frais de notaire. Terrain + Maison proposés au prix de 141 950 € (Hors branchements et raccordements, papiers peints, peintures, revêtement de sol dans les chambres. Tarif modifiable sans préavis). Etiquette énergie : A. Différents modèles disponibles pour ce terrain. Assurances et garanties du constructeur (RC professionnelle, décennale, dommage ouvrage, garantie de remboursement de l'acompte, livraison à prix et délai convenu) : https://www.maisons-brunopetit.fr/mentions-legales/.

Contactez l'agence de Châteauroux

02 54 22 66 24

    * Champs obligatoires

    Vos informations sont traitées par HEXAOM et transmises à un conseiller commercial qui vous contactera afin de répondre à votre demande. Les plans et images présentés sur notre site sont la propriété d’HEXAOM et ne peuvent pas être reproduits sans son accord. Pour retrouver notre politique de protection des données personnelles et exercer vos droits conformément à la « loi informatique et liberté » cliquez-ici.