Maison neuve à
Ambrault (36120) Référence : KG2297023_3

Prix du projet : Maison avec Terrain

prix 222 940 €

  • 4 pièces
  • 3 chambres
  • Surface maison 110 m2

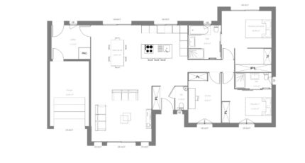
Ambrault : maison F4 (110 m²) à vendre
EMPLACEMENT PRIVILÉGIÉ - MAISON 4 PIÈCES NEUVE
À vendre : située à 20 km de Châteauroux, nous vous proposons cette maison de 4 pièces de plain-pied de 110 m² et de 892 m² de terrain, bénéficiant d'un emplacement d'exception dans Ambrault (36120). Son intérieur compte trois chambres, une cuisine et deux salles de bains.
La maison est neuve.
Cette maison se trouve dans un secteur convoité. Il y a l'École Primaire Gérard Thomzeau à moins de 10 minutes à pied et une crèche. La nationale N151 est accessible à 20 km. On trouve un tennis et une boucherie-charcuterie dans les environs.
Elle est à vendre pour la somme de 222 940 €.
Contactez Kevin GRIMAUD (06-22-14-89-67) pour obtenir de plus amples informations sur la maison ou sur les démarches à suivre.

Mentions légales

Terrain proposé par un partenaire foncier selon disponibilités et autorisation de publicité au prix de 20 840 €. Hors droit d'enregistrement et frais de notaire. Terrain + Maison proposés au prix de 202 100 € (Hors branchements et raccordements, papiers peints, peintures, revêtement de sol dans les chambres. Tarif modifiable sans préavis). Etiquette énergie : A. Différents modèles disponibles pour ce terrain. Assurances et garanties du constructeur (RC professionnelle, décennale, dommage ouvrage, garantie de remboursement de l'acompte, livraison à prix et délai convenu) : https://www.maisons-brunopetit.fr/mentions-legales/.

Contactez l'agence de Châteauroux

02 54 22 66 24

    * Champs obligatoires

    Vos informations sont traitées par HEXAOM et transmises à un conseiller commercial qui vous contactera afin de répondre à votre demande. Les plans et images présentés sur notre site sont la propriété d’HEXAOM et ne peuvent pas être reproduits sans son accord. Pour retrouver notre politique de protection des données personnelles et exercer vos droits conformément à la « loi informatique et liberté » cliquez-ici.