Maison neuve à
Ambrault (36120) Référence : KG2430736_1

Prix du projet : Maison avec Terrain

prix 148 840 €

  • 4 pièces
  • 3 chambres
  • Surface maison 85 m2

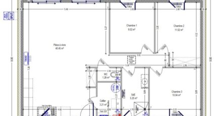
Projet de construction d'une maison F4 (85 m²) à Ambrault
IDÉALEMENT SITUÉE - MAISON 4 PIÈCES NEUVE
En vente : localisée à 20 km de Châteauroux, nous sommes heureux de vous présenter, idéalement située dans Ambrault (36120), cette maison de 4 pièces de plain-pied de 85 m² et de 892 m² de terrain. Conçue de plain-pied, elle offre trois chambres, une cuisine et une salle de bains.
Cette maison est neuve.
La maison est située dans un secteur convoité. Il y a l'École Primaire Gérard Thomzeau à moins de 10 minutes à pied et une structure d'accueil pour les enfants en bas âge. La nationale N151 est accessible à 20 km. On trouve un tennis et une boucherie-charcuterie dans les environs.
Son prix de vente est de 148 840 €.
N'hésitez pas à prendre contact avec notre agence (Kevin GRIMAUD : *6-22-14-89-67) pour tout renseignement sur le bien, sur les modalités de vente ou sur les démarches à suivre.

Mentions légales

Terrain proposé par un partenaire foncier selon disponibilités et autorisation de publicité au prix de 20 840 €. Hors droit d'enregistrement et frais de notaire. Terrain + Maison proposés au prix de 148 840 € (Hors branchements et raccordements, papiers peints, peintures, revêtement de sol dans les chambres. Tarif modifiable sans préavis). Etiquette énergie : A. Différents modèles disponibles pour ce terrain. Assurances et garanties du constructeur (RC professionnelle, décennale, dommage ouvrage, garantie de remboursement de l'acompte, livraison à prix et délai convenu) : https://www.maisons-brunopetit.fr/mentions-legales/.

Contactez l'agence de Châteauroux

02 54 22 66 24

    * Champs obligatoires

    Vos informations sont traitées par HEXAOM et transmises à un conseiller commercial qui vous contactera afin de répondre à votre demande. Les plans et images présentés sur notre site sont la propriété d’HEXAOM et ne peuvent pas être reproduits sans son accord. Pour retrouver notre politique de protection des données personnelles et exercer vos droits conformément à la « loi informatique et liberté » cliquez-ici.