Maison neuve à
Ambrault (36120) Référence : KG2430736_7

Prix du projet : Maison avec Terrain

prix 310 840 €

  • 4 pièces
  • 3 chambres
  • Surface maison 110 m2

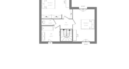
Projet de construction Maison F4 (110 m²) à Ambrault
IDÉALEMENT SITUÉE - MAISON 4 PIÈCES NEUVE
En vente à deux pas de Châteauroux, nous sommes ravis de vous présenter cette maison de 4 pièces de 110 m² et de 892 m² de terrain idéalement située dans Ambrault (36120).
Cette maison compte 2 niveaux. Son intérieur est composé de trois chambres, d'une cuisine et de deux salles de bains. La maison est neuve.
Ce bien se trouve dans un secteur recherché. Il y a l'École Primaire Gérard Thomzeau à moins de 10 minutes à pied et une crèche. La nationale N151 est accessible à 20 km. On trouve un tennis et une boucherie-charcuterie dans les environs.
Il est proposé à l'achat pour 310 840 €.
Contactez Kevin GRIMAUD (*6-22-14-89-67) pour obtenir de plus amples informations sur la maison ou sur les démarches à suivre. Concrétisez vos projets immobiliers avec Maisons Bruno Petit MJB Châteauroux.

Mentions légales

Terrain proposé par un partenaire foncier selon disponibilités et autorisation de publicité au prix de 20 840 €. Hors droit d'enregistrement et frais de notaire. Terrain + Maison proposés au prix de 310 840 € (Hors branchements et raccordements, papiers peints, peintures, revêtement de sol dans les chambres. Tarif modifiable sans préavis). Etiquette énergie : A. Différents modèles disponibles pour ce terrain. Assurances et garanties du constructeur (RC professionnelle, décennale, dommage ouvrage, garantie de remboursement de l'acompte, livraison à prix et délai convenu) : https://www.maisons-brunopetit.fr/mentions-legales/.

Contactez l'agence de Châteauroux

02 54 22 66 24

    * Champs obligatoires

    Vos informations sont traitées par HEXAOM et transmises à un conseiller commercial qui vous contactera afin de répondre à votre demande. Les plans et images présentés sur notre site sont la propriété d’HEXAOM et ne peuvent pas être reproduits sans son accord. Pour retrouver notre politique de protection des données personnelles et exercer vos droits conformément à la « loi informatique et liberté » cliquez-ici.