Maison neuve à
Arçay (18340) Référence : SG2414187_4

Prix du projet : Maison avec Terrain

prix 302 000 €

  • 6 pièces
  • 4 chambres
  • Surface maison 137 m2

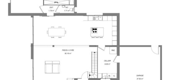
Maison T6 (137 m²) à vendre à Arçay
IDÉALEMENT SITUÉE - MAISON 6 PIÈCES NEUVE
À vendre : à quelques kilomètres de Bourges, nous vous proposons, idéalement située dans Arçay (18340), cette maison de 6 pièces de 137 m² et de 791 m² de terrain.
Il s'agit d'une maison de 2 niveaux. Son intérieur se divise en quatre chambres, une cuisine et deux salles de bains. Cette maison est neuve.
La maison se trouve dans un quartier recherché. On y trouve une école primaire. Côté transports, il y a deux gares (Lunery et Saint-Florent-sur-Cher) à moins de 10 minutes en voiture. On trouve un tennis à proximité.
Elle est proposée à l'achat pour 302 000 €.
Contactez notre agence (Fabien HELLELI : 02-48-50-26-25) pour plus de renseignements sur le bien. Concrétisez vos projets immobiliers avec Maisons Bruno Petit MJB Bourges.

Mentions légales

Terrain proposé par un partenaire foncier selon disponibilités et autorisation de publicité au prix de 33 000 €. Hors droit d'enregistrement et frais de notaire. Terrain + Maison proposés au prix de 302 000 € (Hors branchements et raccordements, papiers peints, peintures, revêtement de sol dans les chambres. Tarif modifiable sans préavis). Etiquette énergie : A. Différents modèles disponibles pour ce terrain. Assurances et garanties du constructeur (RC professionnelle, décennale, dommage ouvrage, garantie de remboursement de l'acompte, livraison à prix et délai convenu) : https://www.maisons-brunopetit.fr/mentions-legales/.

Contactez l'agence de Bourges

02 48 50 26 25

    * Champs obligatoires

    Vos informations sont traitées par HEXAOM et transmises à un conseiller commercial qui vous contactera afin de répondre à votre demande. Les plans et images présentés sur notre site sont la propriété d’HEXAOM et ne peuvent pas être reproduits sans son accord. Pour retrouver notre politique de protection des données personnelles et exercer vos droits conformément à la « loi informatique et liberté » cliquez-ici.