Maison neuve à
Ardentes (36120) Référence : KG2291687_2

Prix du projet : Maison avec Terrain

prix 161 900 €

  • 3 pièces
  • 2 chambres
  • Surface maison 70 m2

VENTE : maison de 3 pièces (70 m²) à Ardentes
IDÉALEMENT SITUÉE - MAISON 3 PIÈCES NEUVE
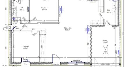
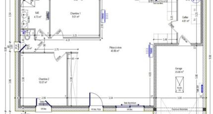
À vendre à quelques kilomètres de Châteauroux, nous sommes heureux de vous proposer, idéalement située dans Ardentes (36120), cette maison de 3 pièces de plain-pied de 70 m² et de 624 m² de terrain.
Conçue de plain-pied, elle dispose de deux chambres, d'une cuisine et d'une salle de bains. La maison est neuve.
La maison est située dans un quartier attractif. Quatre établissements scolaires se trouvent à moins de 10 minutes à pied. L'autoroute A20 et la nationale N151 sont accessibles à moins de 15 km. Il y a une bibliothèque, un tennis, quatre commerces, une boulangerie, un supermarché, un bureau de poste et une épicerie dans les environs. Le marché Place Saint Martin anime le quartier chaque jeudi matin.
Son prix de vente est de 161 900 €.
Contactez notre agence (Kevin GRIMAUD : 06-22-14-89-67) pour obtenir de plus amples renseignements sur la maison ou sur les démarches à suivre.

Mentions légales

Terrain proposé par un partenaire foncier selon disponibilités et autorisation de publicité au prix de 31 000 €. Hors droit d'enregistrement et frais de notaire. Maison proposée, avec un contrat de construction de maison individuelle, dans le cadre de la loi du 19/12/1990, au prix de 130 900 € (Hors branchements et raccordements, papiers peints, peintures, revêtement de sol dans les chambres, qui sont chiffrés dans les travaux qui restent à charge du client. Tarif modifiable sans préavis). Étiquette énergie : A. Différents modèles disponibles pour ce terrain. Assurances et garanties du constructeur comprises (RC professionnelle, décennale, dommage ouvrage).

Contactez l'agence de Châteauroux

02 54 22 66 24

    * Champs obligatoires

    Vos informations sont traitées par HEXAOM et transmises à un conseiller commercial qui vous contactera afin de répondre à votre demande. Les plans et images présentés sur notre site sont la propriété d’HEXAOM et ne peuvent pas être reproduits sans son accord. Pour retrouver notre politique de protection des données personnelles et exercer vos droits conformément à la « loi informatique et liberté » cliquez-ici.