Maison neuve à
Ardentes (36120) Référence : KG2430048_1

Prix du projet : Maison avec Terrain

prix 158 200 €

  • 3 pièces
  • 2 chambres
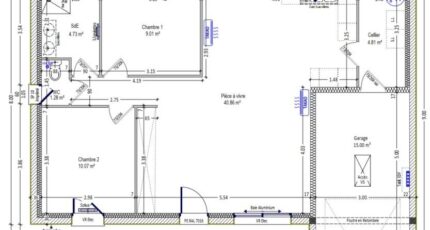
  • Surface maison 70 m2

Ardentes : maison F3 (70 m²) Projet de construction
IDÉALEMENT SITUÉE - MAISON 3 PIÈCES NEUVE
À vendre à 12 km de Châteauroux, nous vous proposons cette maison de 3 pièces de plain-pied de 70 m² et de 624 m² de terrain, idéalement située dans Ardentes (36120).
Elle est composée de deux chambres, d'une cuisine et d'une salle de bains. Cette maison est neuve.
La maison est située dans un quartier attractif. Quatre établissements scolaires sont implantés à moins de 10 minutes à pied. L'autoroute A20 et la nationale N151 sont accessibles à moins de 15 km. On trouve une bibliothèque, un tennis, quatre commerces, une boulangerie, un supermarché, une épicerie et un bureau de poste à quelques minutes. Enfin, le marché Place Saint Martin a lieu tous les jeudis matin.
Elle est à vendre pour la somme de 158 200 €.
Contactez notre agence (Kevin GRIMAUD : *6-22-14-89-67) pour toute question sur la maison. Maisons Bruno Petit MJB Châteauroux vous accompagne à toutes les étapes de l'achat et dans toutes vos démarches.

Mentions légales

Terrain proposé par un partenaire foncier selon disponibilités et autorisation de publicité au prix de 31 000 €. Hors droit d'enregistrement et frais de notaire. Terrain + Maison proposés au prix de 158 200 € (Hors branchements et raccordements, papiers peints, peintures, revêtement de sol dans les chambres. Tarif modifiable sans préavis). Etiquette énergie : A. Différents modèles disponibles pour ce terrain. Assurances et garanties du constructeur (RC professionnelle, décennale, dommage ouvrage, garantie de remboursement de l'acompte, livraison à prix et délai convenu) : https://www.maisons-brunopetit.fr/mentions-legales/.

Contactez l'agence de Châteauroux

02 54 22 66 24

    * Champs obligatoires

    Vos informations sont traitées par HEXAOM et transmises à un conseiller commercial qui vous contactera afin de répondre à votre demande. Les plans et images présentés sur notre site sont la propriété d’HEXAOM et ne peuvent pas être reproduits sans son accord. Pour retrouver notre politique de protection des données personnelles et exercer vos droits conformément à la « loi informatique et liberté » cliquez-ici.