Maison neuve à
Ardentes (36120) Référence : KG2430048_2

Prix du projet : Maison avec Terrain

prix 159 000 €

  • 4 pièces
  • 3 chambres
  • Surface maison 85 m2

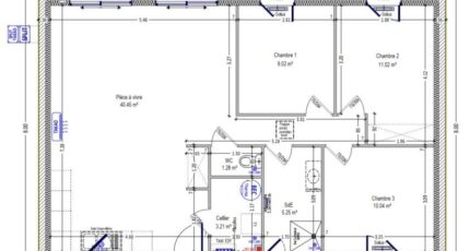
Maison de 4 pièces (85 m²) Pour un projet de construction à Ardentes
IDÉALEMENT SITUÉE - MAISON 4 PIÈCES NEUVE
À vendre à deux pas de Châteauroux, nous vous proposons, idéalement située dans Ardentes (36120), cette maison de 4 pièces de plain-pied de 85 m² et de 624 m² de terrain.
Conçue de plain-pied, elle se divise en trois chambres, une cuisine et une salle de bains. La maison est neuve.
La propriété se situe dans un secteur prisé. On trouve quatre établissements scolaires à moins de 10 minutes à pied. L'autoroute A20 et la nationale N151 sont accessibles à moins de 15 km. Il y a une bibliothèque, un tennis, quatre commerces, une boulangerie, un supermarché, un bureau de poste et une épicerie à quelques minutes à peine. Enfin, le marché Place Saint Martin anime les environs chaque jeudi matin.
Son prix de vente est de 159 000 €.
Contactez notre agence (GRIMAUD Kevin : *6-22-14-89-67) pour toute information sur la maison ou sur les démarches à suivre. Maisons Bruno Petit MJB Châteauroux vous accompagne dans tous vos projets immobiliers et à toutes les étapes de votre projet.

Mentions légales

Terrain proposé par un partenaire foncier selon disponibilités et autorisation de publicité au prix de 31 000 €. Hors droit d'enregistrement et frais de notaire. Terrain + Maison proposés au prix de 159 000 € (Hors branchements et raccordements, papiers peints, peintures, revêtement de sol dans les chambres. Tarif modifiable sans préavis). Etiquette énergie : A. Différents modèles disponibles pour ce terrain. Assurances et garanties du constructeur (RC professionnelle, décennale, dommage ouvrage, garantie de remboursement de l'acompte, livraison à prix et délai convenu) : https://www.maisons-brunopetit.fr/mentions-legales/.

Contactez l'agence de Châteauroux

02 54 22 66 24

    * Champs obligatoires

    Vos informations sont traitées par HEXAOM et transmises à un conseiller commercial qui vous contactera afin de répondre à votre demande. Les plans et images présentés sur notre site sont la propriété d’HEXAOM et ne peuvent pas être reproduits sans son accord. Pour retrouver notre politique de protection des données personnelles et exercer vos droits conformément à la « loi informatique et liberté » cliquez-ici.