Maison neuve à
Ardentes (36120) Référence : KG2430048_6

Prix du projet : Maison avec Terrain

prix 286 000 €

  • 6 pièces
  • 4 chambres
  • Surface maison 120 m2

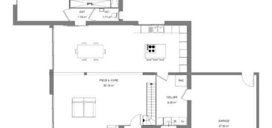
Maison T6 (120 m²)Projet de construction à Ardentes
IDÉALEMENT SITUÉE - MAISON 6 PIÈCES NEUVE
À quelques kilomètres de Châteauroux, nous vous proposons cette maison de 6 pièces de plain-pied de 120 m² à vendre, idéalement située dans Ardentes (36120). Conçue de plain-pied, elle offre quatre chambres, une cuisine et deux salles de bains.
Le terrain de la propriété est de 624 m².
La maison est neuve.
La maison est située dans un secteur attractif. Quatre établissements scolaires se trouvent à moins de 10 minutes à pied. L'autoroute A20 et la nationale N151 sont accessibles à moins de 15 km. Il y a une bibliothèque, un tennis, quatre commerces, une boulangerie, un supermarché, une épicerie et un bureau de poste à proximité. Enfin, le marché Place Saint Martin anime le quartier chaque jeudi matin.
Elle est proposée à l'achat pour 286 000 €.
Prenez contact avec notre agence (Kevin GRIMAUD : *6-22-14-89-67) pour tout renseignement sur la maison ou sur les démarches à suivre. Maisons Bruno Petit MJB Châteauroux est là pour vous accompagner dans tous vos projets immobiliers.

Mentions légales

Terrain proposé par un partenaire foncier selon disponibilités et autorisation de publicité au prix de 31 000 €. Hors droit d'enregistrement et frais de notaire. Terrain + Maison proposés au prix de 286 000 € (Hors branchements et raccordements, papiers peints, peintures, revêtement de sol dans les chambres. Tarif modifiable sans préavis). Etiquette énergie : A. Différents modèles disponibles pour ce terrain. Assurances et garanties du constructeur (RC professionnelle, décennale, dommage ouvrage, garantie de remboursement de l'acompte, livraison à prix et délai convenu) : https://www.maisons-brunopetit.fr/mentions-legales/.

Contactez l'agence de Châteauroux

02 54 22 66 24

    * Champs obligatoires

    Vos informations sont traitées par HEXAOM et transmises à un conseiller commercial qui vous contactera afin de répondre à votre demande. Les plans et images présentés sur notre site sont la propriété d’HEXAOM et ne peuvent pas être reproduits sans son accord. Pour retrouver notre politique de protection des données personnelles et exercer vos droits conformément à la « loi informatique et liberté » cliquez-ici.