Maison neuve à
Ardentes (36120) Référence : KG2471040_4

Prix du projet : Maison avec Terrain

prix 189 856 €

  • 4 pièces
  • 3 chambres
  • Surface maison 85 m2

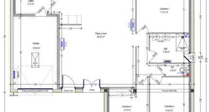
Projet de construction d'une maison de 4 pièces (85 m²) à Ardentes
IDÉALEMENT SITUÉE - MAISON 4 PIÈCES NEUVE
En vente : à quelques kilomètres de Châteauroux, notre agence Maisons Bruno Petit MJB Châteauroux est heureuse de vous présenter cette maison de 4 pièces de plain-pied de 85 m² idéalement située dans Ardentes (36120). Elle compte trois chambres, une cuisine et une salle de bains.
Le terrain de la propriété s'étend sur 1 202 m².
Cette maison est neuve.
Cette maison se situe dans un quartier prisé. L'École Maternelle Antoine Fée, l'École Élémentaire les Deux Rives et le Collège Stanislas Limousin sont implantés à moins de 10 minutes à pied. L'autoroute A20 et la nationale N151 sont accessibles à moins de 15 km. Il y a une bibliothèque, un tennis, des commerces, un bureau de poste et une épicerie dans les environs. Ne manquez pas le marché Place Saint Martin chaque jeudi matin.
Elle est proposée à l'achat pour 189 856 €.
N'hésitez pas à prendre contact avec notre agence (Kevin GRIMAUD : *6-22-14-89-67) pour tout renseignement sur la propriété, sur les modalités de vente et sur les démarches à suivre. Donnez vie à vos projets immobiliers avec Maisons Bruno Petit MJB Châteauroux.

Mentions légales

Terrain proposé par un partenaire foncier selon disponibilités et autorisation de publicité au prix de 43 256 €. Hors droit d'enregistrement et frais de notaire. Terrain + Maison proposés au prix de 189 856 € (Hors branchements et raccordements, papiers peints, peintures, revêtement de sol dans les chambres. Tarif modifiable sans préavis). Etiquette énergie : A. Différents modèles disponibles pour ce terrain. Assurances et garanties du constructeur (RC professionnelle, décennale, dommage ouvrage, garantie de remboursement de l'acompte, livraison à prix et délai convenu) : https://www.maisons-brunopetit.fr/mentions-legales/.

Contactez l'agence de Châteauroux

02 54 22 66 24

    * Champs obligatoires

    Vos informations sont traitées par HEXAOM et transmises à un conseiller commercial qui vous contactera afin de répondre à votre demande. Les plans et images présentés sur notre site sont la propriété d’HEXAOM et ne peuvent pas être reproduits sans son accord. Pour retrouver notre politique de protection des données personnelles et exercer vos droits conformément à la « loi informatique et liberté » cliquez-ici.