Maison neuve à
Argenton-sur-Creuse
(36200) Référence :
KG2295119_1
Prix du projet : Maison avec Terrain
prix 147 430 €
- 3 pièces
- 2 chambres
- Surface maison 70 m2
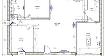
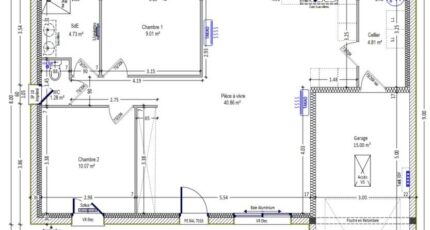
VENTE d'une maison T3 (70 m²) à Argenton-sur-Creuse
IDÉALEMENT SITUÉE - MAISON 3 PIÈCES NEUVE
En vente à deux pas de Châteauroux, laissez vous charmer par cette maison de 3 pièces de plain-pied de 70 m² et de 570 m² de terrain idéalement située dans Argenton-sur-Creuse (36200).
Elle inclut deux chambres, une cuisine et une salle de bains. Cette maison est neuve.
La maison se situe dans un quartier attractif. Il y a tous les types d'écoles (de la maternelle au lycée) à moins de 10 minutes à pied. Niveau transports, on trouve la gare Argenton-sur-Creuse dans les alentours. L'autoroute A20 est accessible à 3 km. Il y a un bassin de natation, des commerces, des boulangeries, deux supermarchés, une poissonnerie et un bureau de poste à proximité du bien. Enfin, le marché Rue du Point du Jour a lieu chaque samedi matin.
Son prix de vente est de 147 430 €.
Contactez notre agence (GRIMAUD Kevin : 06-22-14-89-67) pour toute information sur la maison, sur les démarches à suivre ou sur les modalités de vente.
Mentions légales
Terrain proposé par un partenaire foncier selon disponibilités et autorisation de publicité au prix de 16 530 €. Hors droit d'enregistrement et frais de notaire. Maison proposée, avec un contrat de construction de maison individuelle, dans le cadre de la loi du 19/12/1990, au prix de 130 900 € (Hors branchements et raccordements, papiers peints, peintures, revêtement de sol dans les chambres, qui sont chiffrés dans les travaux qui restent à charge du client. Tarif modifiable sans préavis). Étiquette énergie : A. Différents modèles disponibles pour ce terrain. Assurances et garanties du constructeur comprises (RC professionnelle, décennale, dommage ouvrage).Agence Bruno Petit MJB de Châteauroux (36000)
- Téléphone :
- 02 54 22 66 24
- Adressse :
- 360 avenue de la Châtre
36000 Châteauroux, France