Maison neuve à
Argenton-sur-Creuse (36200) Référence : FR2301920_8

Prix du projet : Maison avec Terrain

prix 271 500 €

  • 6 pièces
  • 4 chambres
  • Surface maison 120 m2

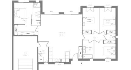
🏡 Maison neuve de plain-pied - F6 - 130 m² habitables - Argenton-sur-Creuse
📍 À Argenton-sur-Creuse, dans un quartier résidentiel, devenez propriétaire de ce projet de maison neuve 6 pièces de plain-pied, implantée sur un terrain idéalement situé à proximité des réseaux de bus 🚌.
________________________________________
✨ Une maison fonctionnelle et confortable
Pensée pour le confort de toute la famille, cette maison offre une organisation optimale des espaces :
Vaste séjour lumineux avec cuisine ouverte
4 chambres, dont une suite parentale avec dressing et salle d'eau privative
Salle de bain dédiée aux enfants
WC indépendant
Cellier
Garage
________________________________________
🏗️ Architecture & performance
✨ Maison personnalisable selon vos envies
✨ Aspect extérieur sobre et moderne, avec menuiseries de couleur
✨ Espaces optimisés, confort au quotidien et excellente performance énergétique
________________________________________
🔧 Prestations de qualité
✔ Chauffage, eau chaude et VMC Atlantic
✔ Volets roulants motorisés et centralisés avec domotique
✔ Sanitaires Jacob Delafon
✔ Portes intérieures gravées
✔ Menuiseries PVC / mixtes / aluminium
✔ Construction conforme à la RE 2020
________________________________________
📜 Projet réalisé sous Contrat de Construction de Maison Individuelle (CCMI - loi de 1990), garantissant une sécurité maximale.
🤝 Maisons Brunon Petit, constructeur local reconnu depuis 47 ans, vous accompagne pour concevoir une maison sur mesure, adaptée à vos attentes et à votre mode de vie.
📞 N'attendez plus !
Contactez Franck RUBIO
📱 °6 30 49 64 43 (SMS acceptés)
pour plus d'informations et donner vie à votre projet personnalisé.

Mentions légales

Terrain proposé par un partenaire foncier selon disponibilités et autorisation de publicité au prix de 16 500 €. Hors droit d'enregistrement et frais de notaire. Terrain + Maison proposés au prix de 255 000 € (Hors branchements et raccordements, papiers peints, peintures, revêtement de sol dans les chambres. Tarif modifiable sans préavis). Etiquette énergie : A. Différents modèles disponibles pour ce terrain. Assurances et garanties du constructeur (RC professionnelle, décennale, dommage ouvrage, garantie de remboursement de l'acompte, livraison à prix et délai convenu) : https://www.maisons-brunopetit.fr/mentions-legales/.

Contactez l'agence de Châteauroux

02 54 22 66 24

    * Champs obligatoires

    Vos informations sont traitées par HEXAOM et transmises à un conseiller commercial qui vous contactera afin de répondre à votre demande. Les plans et images présentés sur notre site sont la propriété d’HEXAOM et ne peuvent pas être reproduits sans son accord. Pour retrouver notre politique de protection des données personnelles et exercer vos droits conformément à la « loi informatique et liberté » cliquez-ici.