Maison neuve à
Argenton-sur-Creuse (36200) Référence : KG2345765_2

Prix du projet : Maison avec Terrain

prix 213 750 €

  • 6 pièces
  • 4 chambres
  • Surface maison 110 m2

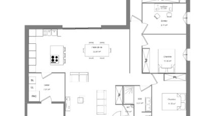
Maison de 6 pièces (110 m²) vendre Proche Argenton-sur-Creuse
EMPLACEMENT PRIVILÉGIÉ - MAISON 6 PIÈCES NEUVE
À quelques kilomètres de Châteauroux, nous vous présentons cette maison de 6 pièces de plain-pied de 110 m² et de 930 m² de terrain bénéficiant d'un emplacement privilégié dans Argenton-sur-Creuse (36200).
Conçue de plain-pied, elle compte quatre chambres, une cuisine et deux salles de bains. Cette maison est neuve.
Cette maison est située dans un secteur attractif. Des établissements scolaires de tous niveaux se trouvent à moins de 10 minutes à pied. Niveau transports en commun, il y a la gare Argenton-sur-Creuse dans un rayon de 1 km. L'autoroute A20 est accessible à 3 km. On trouve un bassin de natation, des commerces, des boulangeries, deux supermarchés, une épicerie et quatre boucheries-charcuteries à quelques minutes à peine. Enfin, le marché Rue du Point du Jour a lieu tous les samedis matin.
Elle est à vendre pour la somme de 213 750 €.
Contactez notre agence (Kevin GRIMAUD : *6-22-14-89-67) pour toute question sur la maison, sur les démarches à suivre ou sur les modalités de vente. Faites de vos projets immobiliers une réalité avec Maisons Bruno Petit MJB Châteauroux.

Mentions légales

Terrain proposé par un partenaire foncier selon disponibilités et autorisation de publicité au prix de 15 500 €. Hors droit d'enregistrement et frais de notaire. Terrain + Maison proposés au prix de 198 250 € (Hors branchements et raccordements, papiers peints, peintures, revêtement de sol dans les chambres. Tarif modifiable sans préavis). Etiquette énergie : A. Différents modèles disponibles pour ce terrain. Assurances et garanties du constructeur (RC professionnelle, décennale, dommage ouvrage, garantie de remboursement de l'acompte, livraison à prix et délai convenu) : https://www.maisons-brunopetit.fr/mentions-legales/.

Contactez l'agence de Châteauroux

02 54 22 66 24

    * Champs obligatoires

    Vos informations sont traitées par HEXAOM et transmises à un conseiller commercial qui vous contactera afin de répondre à votre demande. Les plans et images présentés sur notre site sont la propriété d’HEXAOM et ne peuvent pas être reproduits sans son accord. Pour retrouver notre politique de protection des données personnelles et exercer vos droits conformément à la « loi informatique et liberté » cliquez-ici.