Maison neuve à
Argenton-sur-Creuse (36200) Référence : KG2345765_8

Prix du projet : Maison avec Terrain

prix 357 200 €

  • 6 pièces
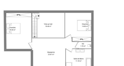
  • 3 chambres
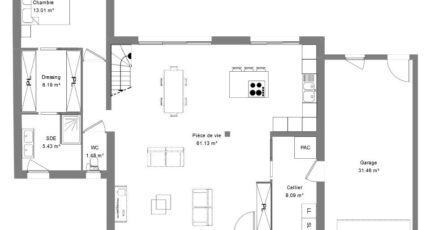
  • Surface maison 160 m2

VENTE : maison de 6 pièces (160 m²) Proche Argenton-sur-Creuse
EMPLACEMENT PRIVILÉGIÉ - MAISON 6 PIÈCES NEUVE
En vente : à quelques kilomètres de Châteauroux, Maisons Bruno Petit MJB Châteauroux vous présente cette maison de 6 pièces de 160 m² bénéficiant d'un emplacement privilégié dans Argenton-sur-Creuse (36200). Son intérieur est composé de trois chambres, d'une cuisine et de deux salles de bains.
Le terrain de cette maison est de 930 m².
Cette maison compte 2 niveaux. Elle est neuve.
La maison se trouve dans un quartier prisé. Il y a des écoles de tous types (de la maternelle au lycée) à moins de 10 minutes à pied. Niveau transports, on trouve la gare Argenton-sur-Creuse dans les alentours. L'autoroute A20 est accessible à 3 km. Il y a un bassin de natation, des commerces, des boulangeries, deux supermarchés, une poissonnerie et un bureau de poste à proximité du bien. Le marché Rue du Point du Jour anime le quartier chaque samedi matin.
Elle est proposée à l'achat pour 357 200 €.
N'hésitez pas à prendre contact avec notre agence (Kevin GRIMAUD : *6-22-14-89-67) pour plus d'informations sur la maison. Maisons Bruno Petit MJB Châteauroux est là pour vous accompagner dans tous vos projets immobiliers.

Mentions légales

Terrain proposé par un partenaire foncier selon disponibilités et autorisation de publicité au prix de 15 500 €. Hors droit d'enregistrement et frais de notaire. Terrain + Maison proposés au prix de 341 700 € (Hors branchements et raccordements, papiers peints, peintures, revêtement de sol dans les chambres. Tarif modifiable sans préavis). Etiquette énergie : A. Différents modèles disponibles pour ce terrain. Assurances et garanties du constructeur (RC professionnelle, décennale, dommage ouvrage, garantie de remboursement de l'acompte, livraison à prix et délai convenu) : https://www.maisons-brunopetit.fr/mentions-legales/.

Contactez l'agence de Châteauroux

02 54 22 66 24

    * Champs obligatoires

    Vos informations sont traitées par HEXAOM et transmises à un conseiller commercial qui vous contactera afin de répondre à votre demande. Les plans et images présentés sur notre site sont la propriété d’HEXAOM et ne peuvent pas être reproduits sans son accord. Pour retrouver notre politique de protection des données personnelles et exercer vos droits conformément à la « loi informatique et liberté » cliquez-ici.