Maison neuve à
Argenton-sur-Creuse (36200) Référence : KG2430861_1

Prix du projet : Maison avec Terrain

prix 152 200 €

  • 3 pièces
  • 2 chambres
  • Surface maison 70 m2

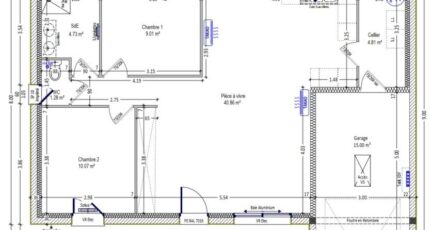
Projet de construction : maison de 3 pièces (70 m²) à Argenton-sur-Creuse
MAISON 3 PIÈCES NEUVE - PROCHE DE CHÂTEAUROUX
À vendre : à quelques kilomètres de Châteauroux, nous sommes heureux de vous proposer à Argenton-sur-Creuse (36200), cette maison de 3 pièces de plain-pied de 70 m² et de 690 m² de terrain. Elle dispose de deux chambres, d'une cuisine et d'une salle de bains.
La maison est neuve.
Des établissements scolaires de tous types sont implantés à moins de 10 minutes à pied. Côté transports en commun, on trouve la gare Argenton-sur-Creuse juste à côté. Il y a un accès à l'autoroute A20 à 3 km. Il y a un bassin de natation, des commerces, des boulangeries, deux supermarchés, une épicerie et une poissonnerie à quelques minutes du bien. Le marché Rue du Point du Jour anime les environs tous les samedis matin.
Elle est proposée à l'achat pour 152 200 €.
Contactez Kevin GRIMAUD (*6-22-14-89-67) pour obtenir de plus amples informations sur la maison ou sur les modalités de vente. Maisons Bruno Petit MJB Châteauroux vous accompagne à toutes les étapes de l'achat et dans tous vos projets immobiliers.

Mentions légales

Terrain proposé par un partenaire foncier selon disponibilités et autorisation de publicité au prix de 25 000 €. Hors droit d'enregistrement et frais de notaire. Terrain + Maison proposés au prix de 152 200 € (Hors branchements et raccordements, papiers peints, peintures, revêtement de sol dans les chambres. Tarif modifiable sans préavis). Etiquette énergie : A. Différents modèles disponibles pour ce terrain. Assurances et garanties du constructeur (RC professionnelle, décennale, dommage ouvrage, garantie de remboursement de l'acompte, livraison à prix et délai convenu) : https://www.maisons-brunopetit.fr/mentions-legales/.

Contactez l'agence de Châteauroux

02 54 22 66 24

    * Champs obligatoires

    Vos informations sont traitées par HEXAOM et transmises à un conseiller commercial qui vous contactera afin de répondre à votre demande. Les plans et images présentés sur notre site sont la propriété d’HEXAOM et ne peuvent pas être reproduits sans son accord. Pour retrouver notre politique de protection des données personnelles et exercer vos droits conformément à la « loi informatique et liberté » cliquez-ici.