Maison neuve à
Argenvières (18140) Référence : JL2305127_1

Prix du projet : Maison avec Terrain

prix 216 900 €

  • 4 pièces
  • 3 chambres
  • Surface maison 120 m2

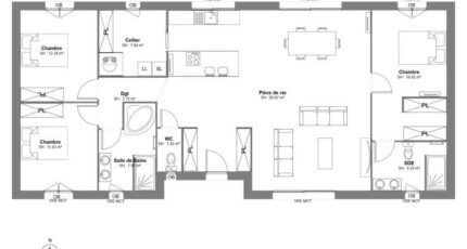
Argenvières : maison F4 (120 m²) à vendre
IDÉALEMENT SITUÉE - MAISON 4 PIÈCES NEUVE
À vendre à 21 km de Nevers, nous sommes ravis de vous proposer, idéalement située dans Argenvières (18140), cette maison de 4 pièces de plain-pied de 120 m².
Elle compte trois chambres, une cuisine et deux salles de bains. Cette maison est neuve.
Le terrain de la propriété s'étend sur 2 100 m².
La maison est située dans un quartier convoité. Plusieurs écoles (maternelle, élémentaire, primaire et collège) se trouvent à moins de 10 minutes en voiture. Côté transports, il y a quatre gares dans les alentours. Il y a un accès à l'autoroute A77 à 3 km. On trouve des tennis, trois bassins de natation, deux bibliothèques, des commerces, trois supermarchés, des boulangeries, trois épiceries et une supérette à quelques minutes du bien.
Son prix de vente est de 216 900 €.
N'hésitez pas à prendre contact avec notre agence (Jonathan LEBLANC : 02-48-50-26-25) pour tout renseignement sur la maison, sur les modalités de vente ou sur les démarches à suivre.

Mentions légales

Terrain proposé par un partenaire foncier selon disponibilités et autorisation de publicité au prix de 30 000 €. Hors droit d'enregistrement et frais de notaire. Terrain + Maison proposés au prix de 186 900 € (Hors branchements et raccordements, papiers peints, peintures, revêtement de sol dans les chambres. Tarif modifiable sans préavis). Etiquette énergie : A. Différents modèles disponibles pour ce terrain. Assurances et garanties du constructeur (RC professionnelle, décennale, dommage ouvrage, garantie de remboursement de l'acompte, livraison à prix et délai convenu) : https://www.maisons-brunopetit.fr/mentions-legales/.

Contactez l'agence de Bourges

02 48 50 26 25

    * Champs obligatoires

    Vos informations sont traitées par HEXAOM et transmises à un conseiller commercial qui vous contactera afin de répondre à votre demande. Les plans et images présentés sur notre site sont la propriété d’HEXAOM et ne peuvent pas être reproduits sans son accord. Pour retrouver notre politique de protection des données personnelles et exercer vos droits conformément à la « loi informatique et liberté » cliquez-ici.