Maison neuve à
Arthon (36330) Référence : TM2310705_3

Prix du projet : Maison avec Terrain

prix 161 200 €

  • 3 pièces
  • 2 chambres
  • Surface maison 70 m2

VENTE d'une maison F3 (70 m²) à Arthon
MAISON 3 PIÈCES NEUVE - PROCHE DE CHÂTEAUROUX
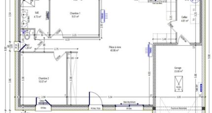
En vente à quelques kilomètres de Châteauroux, nous sommes ravis de vous présenter cette maison de 3 pièces de plain-pied de 70 m² et de 700 m² de terrain à Arthon (36330). Elle comporte deux chambres, une cuisine et une salle de bains.
Cette maison est neuve.
Une école primaire est implantée dans le quartier. Niveau transports, il y a la gare Luant à moins de 10 minutes en voiture. Il y a un accès à l'autoroute A20 à 9 km. On trouve un tennis, une bibliothèque, une boulangerie, une épicerie et une boucherie-charcuterie dans les environs.
Elle est proposée à l'achat pour 161 200 €.
Contactez notre agence (MANIERE Thomas : 06-15-51-71-54) pour toute information sur la maison ou sur les démarches à suivre. Maisons Bruno Petit MJB Châteauroux est là pour vous accompagner à toutes les étapes de votre projet.

Mentions légales

Terrain proposé par un partenaire foncier selon disponibilités et autorisation de publicité au prix de 30 300 €. Hors droit d'enregistrement et frais de notaire. Terrain + Maison proposés au prix de 130 900 € (Hors branchements et raccordements, papiers peints, peintures, revêtement de sol dans les chambres. Tarif modifiable sans préavis). Etiquette énergie : A. Différents modèles disponibles pour ce terrain. Assurances et garanties du constructeur (RC professionnelle, décennale, dommage ouvrage, garantie de remboursement de l'acompte, livraison à prix et délai convenu) : https://www.maisons-brunopetit.fr/mentions-legales/.

Contactez l'agence de Châteauroux

02 54 22 66 24

    * Champs obligatoires

    Vos informations sont traitées par HEXAOM et transmises à un conseiller commercial qui vous contactera afin de répondre à votre demande. Les plans et images présentés sur notre site sont la propriété d’HEXAOM et ne peuvent pas être reproduits sans son accord. Pour retrouver notre politique de protection des données personnelles et exercer vos droits conformément à la « loi informatique et liberté » cliquez-ici.