Maison neuve à
Arthon (36330) Référence : TM2310705_4

Prix du projet : Maison avec Terrain

prix 160 900 €

  • 4 pièces
  • 3 chambres
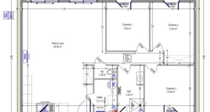
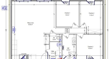
  • Surface maison 85 m2

VENTE d'une maison de 4 pièces (85 m²) à Arthon
MAISON 4 PIÈCES NEUVE - PROCHE DE CHÂTEAUROUX
En vente à quelques kilomètres de Châteauroux, à Arthon (36330), notre agence Maisons Bruno Petit MJB Châteauroux est heureuse de vous proposer cette maison de 4 pièces de plain-pied de 85 m² et de 700 m² de terrain.
Conçue de plain-pied, elle inclut trois chambres, une cuisine et une salle de bains. La maison est neuve.
Il y a une école primaire dans le quartier. Côté transports en commun, on trouve la gare Luant à moins de 10 minutes en voiture. L'autoroute A20 est accessible à 9 km. Il y a un tennis, une bibliothèque, une boulangerie, une épicerie et une boucherie-charcuterie dans les environs.
Son prix de vente est de 160 900 €.
Prenez contact avec Thomas MANIERE (06-15-51-71-54) pour toute information sur cette maison, sur les modalités de vente ou sur les démarches à suivre. Donnez vie à vos projets immobiliers avec Maisons Bruno Petit MJB Châteauroux.

Mentions légales

Terrain proposé par un partenaire foncier selon disponibilités et autorisation de publicité au prix de 30 300 €. Hors droit d'enregistrement et frais de notaire. Terrain + Maison proposés au prix de 130 600 € (Hors branchements et raccordements, papiers peints, peintures, revêtement de sol dans les chambres. Tarif modifiable sans préavis). Etiquette énergie : A. Différents modèles disponibles pour ce terrain. Assurances et garanties du constructeur (RC professionnelle, décennale, dommage ouvrage, garantie de remboursement de l'acompte, livraison à prix et délai convenu) : https://www.maisons-brunopetit.fr/mentions-legales/.

Contactez l'agence de Châteauroux

02 54 22 66 24

    * Champs obligatoires

    Vos informations sont traitées par HEXAOM et transmises à un conseiller commercial qui vous contactera afin de répondre à votre demande. Les plans et images présentés sur notre site sont la propriété d’HEXAOM et ne peuvent pas être reproduits sans son accord. Pour retrouver notre politique de protection des données personnelles et exercer vos droits conformément à la « loi informatique et liberté » cliquez-ici.