Maison neuve à
Arthon (36330) Référence : TM2310705_6

Prix du projet : Maison avec Terrain

prix 174 400 €

  • 4 pièces
  • 3 chambres
  • Surface maison 85 m2

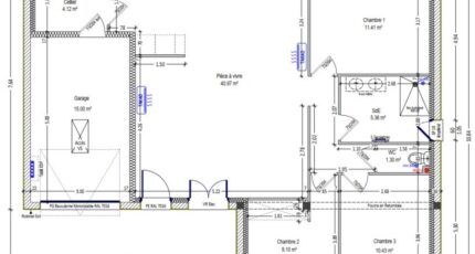
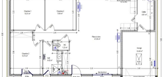
VENTE : maison de 4 pièces (85 m²) à Arthon
PROCHE DE CHÂTEAUROUX - MAISON 4 PIÈCES NEUVE
À deux pas de Châteauroux, Maisons Bruno Petit MJB Châteauroux vous propose à vendre à Arthon (36330), cette maison de 4 pièces de plain-pied de 85 m². Son intérieur comporte trois chambres, une cuisine et une salle de bains.
Le terrain de la maison s'étend sur 700 m².
La maison est neuve.
Il y a une école primaire dans le quartier. Côté transports, on trouve la gare Luant à moins de 10 minutes en voiture. L'autoroute A20 est accessible à 9 km. Il y a un tennis, une bibliothèque, une boulangerie, une épicerie et une boucherie-charcuterie à proximité de la maison.
Elle est à vendre pour la somme de 174 400 €.
Prenez contact avec notre agence (MANIERE Thomas : 06-15-51-71-54) pour plus de renseignements sur cette maison. Maisons Bruno Petit MJB Châteauroux est là pour vous accompagner dans toutes vos démarches.

Mentions légales

Terrain proposé par un partenaire foncier selon disponibilités et autorisation de publicité au prix de 30 300 €. Hors droit d'enregistrement et frais de notaire. Terrain + Maison proposés au prix de 144 100 € (Hors branchements et raccordements, papiers peints, peintures, revêtement de sol dans les chambres. Tarif modifiable sans préavis). Etiquette énergie : A. Différents modèles disponibles pour ce terrain. Assurances et garanties du constructeur (RC professionnelle, décennale, dommage ouvrage, garantie de remboursement de l'acompte, livraison à prix et délai convenu) : https://www.maisons-brunopetit.fr/mentions-legales/.

Contactez l'agence de Châteauroux

02 54 22 66 24

    * Champs obligatoires

    Vos informations sont traitées par HEXAOM et transmises à un conseiller commercial qui vous contactera afin de répondre à votre demande. Les plans et images présentés sur notre site sont la propriété d’HEXAOM et ne peuvent pas être reproduits sans son accord. Pour retrouver notre politique de protection des données personnelles et exercer vos droits conformément à la « loi informatique et liberté » cliquez-ici.