Maison neuve à
Avord (18520) Référence : FH2440941_3

Prix du projet : Maison avec Terrain

prix 423 421 €

  • 6 pièces
  • 4 chambres
  • Surface maison 180 m2

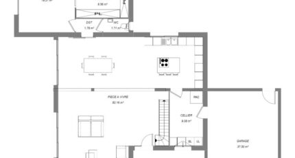
Avord : maison de 6 pièces (180 m²) en vente
MAISON 6 PIÈCES NEUVE - PROCHE DE BOURGES
À quelques minutes de la gare, nous sommes heureux de vous proposer cette maison de 6 pièces de 180 m² à Avord (18520).
Cette maison possède 2 niveaux. Son intérieur propose quatre chambres, une cuisine et deux salles de bains. La maison est neuve.
Le terrain de la propriété est de 800 m².
On trouve deux établissements scolaires à moins de 10 minutes à pied et, parmi lesquels le Collège George Sand. Côté transports en commun, il y a la gare Avord dans un rayon de 1 km. On trouve deux commerces, deux boulangeries, un supermarché et un bureau de poste à quelques minutes du bien.
Elle est proposée à l'achat pour 423 421 €.
N'hésitez pas à prendre contact avec Fabien HELLELI (tél : 02-48-50-26-25) pour obtenir de plus amples informations sur cette maison. Maisons Bruno Petit MJB Bourges vous accompagne à toutes les étapes de votre projet et dans toutes vos démarches.

Mentions légales

Terrain proposé par un partenaire foncier selon disponibilités et autorisation de publicité au prix de 22 944 €. Hors droit d'enregistrement et frais de notaire. Terrain + Maison proposés au prix de 423 421 € (Hors branchements et raccordements, papiers peints, peintures, revêtement de sol dans les chambres. Tarif modifiable sans préavis). Etiquette énergie : A. Différents modèles disponibles pour ce terrain. Assurances et garanties du constructeur (RC professionnelle, décennale, dommage ouvrage, garantie de remboursement de l'acompte, livraison à prix et délai convenu) : https://www.maisons-brunopetit.fr/mentions-legales/.

Contactez l'agence de Bourges

02 48 50 26 25

    * Champs obligatoires

    Vos informations sont traitées par HEXAOM et transmises à un conseiller commercial qui vous contactera afin de répondre à votre demande. Les plans et images présentés sur notre site sont la propriété d’HEXAOM et ne peuvent pas être reproduits sans son accord. Pour retrouver notre politique de protection des données personnelles et exercer vos droits conformément à la « loi informatique et liberté » cliquez-ici.