Maison neuve à
Bourges (18000) Référence : JL2312119_4

Prix du projet : Maison avec Terrain

prix 347 500 €

  • 6 pièces
  • 3 chambres
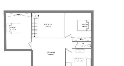
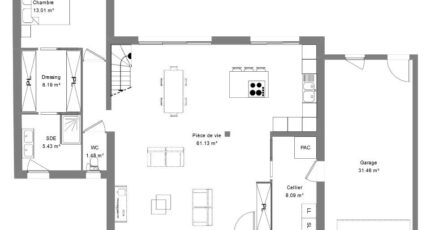
  • Surface maison 160 m2

Maison de 6 pièces (160 m²) en vente à Bourges
IDÉALEMENT SITUÉE - MAISON 6 PIÈCES NEUVE
À vendre : venez découvrir cette maison de 6 pièces de 160 m² et de 600 m² de terrain idéalement située dans Bourges (18000).
Cette maison comporte 2 niveaux. Son intérieur propose trois chambres, une cuisine et deux salles de bains. Cette maison est neuve.
La maison se trouve dans un quartier attractif. Tous les types d'écoles (de la maternelle au lycée) sont implantés à moins de 10 minutes à pied, une structure d'accueil pour les enfants en bas âge, tout comme une établissement du supérieur à proximité : l'Institut national des sciences appliquées Centre Val de Loire. Côté transports, il y a les gares Bourges, Saint-Germain-du-Puy et Marmagne à moins de 10 minutes en voiture. L'autoroute A71 et les nationales N142 et N151 sont accessibles à moins de 7 km. On trouve des commerces, des boulangeries, deux supermarchés, des épiceries et deux poissonneries à quelques minutes de la maison. Ne manquez pas le marché Place des Marronniers chaque jeudi matin.
Elle est à vendre pour la somme de 347 500 €.
Contactez notre agence (LEBLANC Jonathan : 02-48-50-26-25) pour toute information sur la maison, sur les modalités de vente ou sur les démarches à suivre. Faites de vos projets immobiliers une réalité avec Maisons Bruno Petit MJB Bourges.

Mentions légales

Terrain proposé par un partenaire foncier selon disponibilités et autorisation de publicité au prix de 50 000 €. Hors droit d'enregistrement et frais de notaire. Terrain + Maison proposés au prix de 297 500 € (Hors branchements et raccordements, papiers peints, peintures, revêtement de sol dans les chambres. Tarif modifiable sans préavis). Etiquette énergie : A. Différents modèles disponibles pour ce terrain. Assurances et garanties du constructeur (RC professionnelle, décennale, dommage ouvrage, garantie de remboursement de l'acompte, livraison à prix et délai convenu) : https://www.maisons-brunopetit.fr/mentions-legales/.

Contactez l'agence de Bourges

02 48 50 26 25

    * Champs obligatoires

    Vos informations sont traitées par HEXAOM et transmises à un conseiller commercial qui vous contactera afin de répondre à votre demande. Les plans et images présentés sur notre site sont la propriété d’HEXAOM et ne peuvent pas être reproduits sans son accord. Pour retrouver notre politique de protection des données personnelles et exercer vos droits conformément à la « loi informatique et liberté » cliquez-ici.