Maison neuve à
Bourges (18000) Référence : FH2432297_7

Prix du projet : Maison avec Terrain

prix 498 200 €

  • 6 pièces
  • 4 chambres
  • Surface maison 180 m2

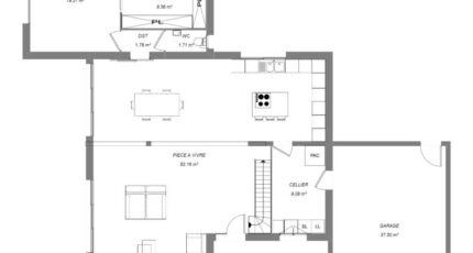
Bourges : maison de 6 pièces (180 m²) à vendre
MAISON 6 PIÈCES NEUVE
À vendre : ayez le coup de coeur pour cette maison de 6 pièces de 180 m² à Bourges (18000).
Cette maison compte 2 niveaux. Elle offre quatre chambres, une cuisine et deux salles de bains. Cette maison est neuve.
Le terrain du bien s'étend sur 800 m².
Des établissements scolaires de tous types sont implantés à moins de 10 minutes à pied, une structure d'accueil pour la petite enfance, tout comme une établissement du supérieur dans les environs : l'Institut national des sciences appliquées Centre Val de Loire. Côté transports, on trouve trois gares (Bourges, Saint-Germain-du-Puy et Marmagne) à moins de 10 minutes en voiture. L'autoroute A71 et les nationales N142 et N151 sont accessibles à moins de 7 km. Il y a des commerces, des boulangeries, deux supermarchés, des épiceries et deux poissonneries à quelques minutes de la maison. Enfin, le marché Place des Marronniers a lieu tous les jeudis matin.
Son prix de vente est de 498 200 €.
Contactez notre agence (Fabien HELLELI : 02-48-50-26-25) pour toute information sur la maison. Maisons Bruno Petit MJB Bourges vous accompagne dans tous vos projets immobiliers et à toutes les étapes de l'achat.

Mentions légales

Terrain proposé par un partenaire foncier selon disponibilités et autorisation de publicité au prix de 85 000 €. Hors droit d'enregistrement et frais de notaire. Terrain + Maison proposés au prix de 498 200 € (Hors branchements et raccordements, papiers peints, peintures, revêtement de sol dans les chambres. Tarif modifiable sans préavis). Etiquette énergie : A. Différents modèles disponibles pour ce terrain. Assurances et garanties du constructeur (RC professionnelle, décennale, dommage ouvrage, garantie de remboursement de l'acompte, livraison à prix et délai convenu) : https://www.maisons-brunopetit.fr/mentions-legales/.

Contactez l'agence de Bourges

02 48 50 26 25

    * Champs obligatoires

    Vos informations sont traitées par HEXAOM et transmises à un conseiller commercial qui vous contactera afin de répondre à votre demande. Les plans et images présentés sur notre site sont la propriété d’HEXAOM et ne peuvent pas être reproduits sans son accord. Pour retrouver notre politique de protection des données personnelles et exercer vos droits conformément à la « loi informatique et liberté » cliquez-ici.