Maison neuve à
Bourges (18000) Référence : FH2445382_1

Prix du projet : Maison avec Terrain

prix 245 678 €

  • 3 pièces
  • 2 chambres
  • Surface maison 70 m2

Maison de 3 pièces (70 m²) en vente à Bourges
MAISON 3 PIÈCES NEUVE
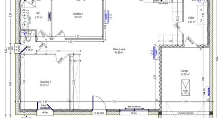
Votre agence Maisons Bruno Petit MJB Bourges est heureuse de vous proposer en vente à Bourges (18000), cette maison de 3 pièces de plain-pied de 70 m².
Conçue de plain-pied, elle compte deux chambres, une cuisine et une salle de bains. La maison est neuve.
Le terrain de la propriété est de 1 798 m².
Des établissements scolaires (de la maternelle au lycée) sont implantés à moins de 10 minutes à pied, une crèche, tout comme une établissement du supérieur à proximité : l'Institut national des sciences appliquées Centre Val de Loire. Côté transports en commun, il y a les gares Bourges, Saint-Germain-du-Puy et Marmagne à moins de 10 minutes en voiture. On trouve des commerces, deux poissonneries, quatre supérettes, des épiceries et des boucheries-charcuteries à quelques minutes du logement. Ne manquez pas le marché Place des Marronniers tous les jeudis matin.
Son prix de vente est de 245 678 €.
N'hésitez pas à prendre contact avec Fabien HELLELI (02-48-50-26-25) pour plus de renseignements sur cette maison et sur les modalités de vente.

Mentions légales

Terrain proposé par un partenaire foncier selon disponibilités et autorisation de publicité au prix de 109 000 €. Hors droit d'enregistrement et frais de notaire. Terrain + Maison proposés au prix de 245 678 € (Hors branchements et raccordements, papiers peints, peintures, revêtement de sol dans les chambres. Tarif modifiable sans préavis). Etiquette énergie : A. Différents modèles disponibles pour ce terrain. Assurances et garanties du constructeur (RC professionnelle, décennale, dommage ouvrage, garantie de remboursement de l'acompte, livraison à prix et délai convenu) : https://www.maisons-brunopetit.fr/mentions-legales/.

Contactez l'agence de Bourges

02 48 50 26 25

    * Champs obligatoires

    Vos informations sont traitées par HEXAOM et transmises à un conseiller commercial qui vous contactera afin de répondre à votre demande. Les plans et images présentés sur notre site sont la propriété d’HEXAOM et ne peuvent pas être reproduits sans son accord. Pour retrouver notre politique de protection des données personnelles et exercer vos droits conformément à la « loi informatique et liberté » cliquez-ici.