Maison neuve à
Bourges (18000) Référence : FH2445382_7

Prix du projet : Maison avec Terrain

prix 256 721 €

  • 4 pièces
  • 3 chambres
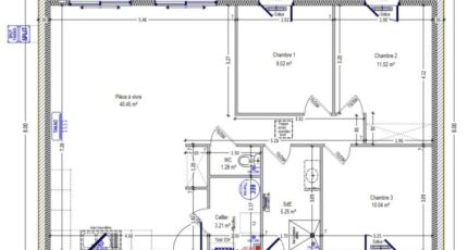
  • Surface maison 85 m2

Bourges : maison F4 (85 m²) à vendre
MAISON 4 PIÈCES NEUVE
Nous vous présentons cette maison de 4 pièces de plain-pied de 85 m² et de 1 798 m² de terrain à Bourges (18000).
Elle compte trois chambres, une cuisine et une salle de bains. Cette maison est neuve.
Il y a tous les types d'établissements scolaires (maternelle, élémentaire et secondaire) à moins de 10 minutes à pied, une structure d'accueil pour la petite enfance, tout comme l'Institut national des sciences appliquées Centre Val de Loire pour le supérieur. Niveau transports, on trouve les gares Bourges, Saint-Germain-du-Puy et Marmagne à moins de 10 minutes en voiture. Il y a des commerces, deux poissonneries, un bureau de poste, quatre supérettes et des épiceries à proximité. Enfin, le marché Place des Marronniers anime les environs tous les jeudis matin.
Son prix de vente est de 256 721 €.
Prenez contact avec Fabien HELLELI (02-48-50-26-25) pour tout renseignement sur cette maison. Concrétisez vos projets immobiliers avec Maisons Bruno Petit MJB Bourges.

Mentions légales

Terrain proposé par un partenaire foncier selon disponibilités et autorisation de publicité au prix de 109 000 €. Hors droit d'enregistrement et frais de notaire. Terrain + Maison proposés au prix de 256 721 € (Hors branchements et raccordements, papiers peints, peintures, revêtement de sol dans les chambres. Tarif modifiable sans préavis). Etiquette énergie : A. Différents modèles disponibles pour ce terrain. Assurances et garanties du constructeur (RC professionnelle, décennale, dommage ouvrage, garantie de remboursement de l'acompte, livraison à prix et délai convenu) : https://www.maisons-brunopetit.fr/mentions-legales/.

Contactez l'agence de Bourges

02 48 50 26 25

    * Champs obligatoires

    Vos informations sont traitées par HEXAOM et transmises à un conseiller commercial qui vous contactera afin de répondre à votre demande. Les plans et images présentés sur notre site sont la propriété d’HEXAOM et ne peuvent pas être reproduits sans son accord. Pour retrouver notre politique de protection des données personnelles et exercer vos droits conformément à la « loi informatique et liberté » cliquez-ici.