Maison neuve à
Brécy (18220) Référence : SG2395850_2

Prix du projet : Maison avec Terrain

prix 154 018 €

  • 4 pièces
  • 3 chambres
  • Surface maison 85 m2

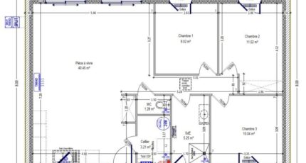
VENTE : maison T4 (85 m²) à Brécy
IDÉALEMENT SITUÉE - MAISON 4 PIÈCES NEUVE
À vendre à deux pas de Bourges, Maisons Bruno Petit MJB Bourges vous propose cette maison de 4 pièces de plain-pied de 85 m² et de 1 022 m² de terrain, idéalement située dans Brécy (18220). Conçue de plain-pied, elle propose trois chambres, une cuisine et une salle de bains.
Cette maison est neuve.
Cette propriété est située dans un quartier attractif. Une école primaire y est implantée. La nationale N142 est accessible à 16 km. Il y a un tennis dans les environs.
Son prix de vente est de 154 018 €.
Contactez notre agence (Sandra GROGRELIN : *2-48-50-26-25) pour toute question sur la maison, sur les démarches à suivre ou sur les modalités de vente.

Mentions légales

Terrain proposé par un partenaire foncier selon disponibilités et autorisation de publicité au prix de 23 418 €. Hors droit d'enregistrement et frais de notaire. Terrain + Maison proposés au prix de 130 600 € (Hors branchements et raccordements, papiers peints, peintures, revêtement de sol dans les chambres. Tarif modifiable sans préavis). Etiquette énergie : A. Différents modèles disponibles pour ce terrain. Assurances et garanties du constructeur (RC professionnelle, décennale, dommage ouvrage, garantie de remboursement de l'acompte, livraison à prix et délai convenu) : https://www.maisons-brunopetit.fr/mentions-legales/.

Contactez l'agence de Bourges

02 48 50 26 25

    * Champs obligatoires

    Vos informations sont traitées par HEXAOM et transmises à un conseiller commercial qui vous contactera afin de répondre à votre demande. Les plans et images présentés sur notre site sont la propriété d’HEXAOM et ne peuvent pas être reproduits sans son accord. Pour retrouver notre politique de protection des données personnelles et exercer vos droits conformément à la « loi informatique et liberté » cliquez-ici.