Maison neuve à
Buxières-d'Aillac (36230) Référence : KG2295240_1

Prix du projet : Maison avec Terrain

prix 145 755 €

  • 4 pièces
  • 3 chambres
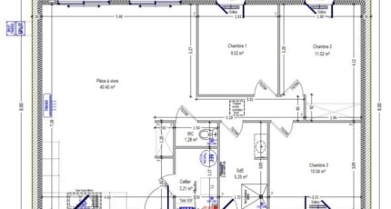
  • Surface maison 85 m2

Buxières-d'Aillac : maison de 4 pièces (85 m²) à vendre
EMPLACEMENT PRIVILÉGIÉ - MAISON 4 PIÈCES NEUVE
En vente : à quelques kilomètres de Châteauroux, venez découvrir cette maison de 4 pièces de plain-pied de 85 m² et de 970 m² de terrain bénéficiant d'un emplacement privilégié dans Buxières-d'Aillac (36230).
Elle compte trois chambres, une cuisine et une salle de bains. La maison est neuve.
Cette maison se trouve dans un quartier recherché. L'autoroute A20 est accessible à 15 km. Il y a une bibliothèque dans les environs.
Elle est à vendre pour la somme de 145 755 €.
Contactez Kevin GRIMAUD (tél : 06-22-14-89-67) pour obtenir de plus amples informations sur la maison. Maisons Bruno Petit MJB Châteauroux vous accompagne dans tous vos projets immobiliers et à toutes les étapes de votre projet.

Mentions légales

Terrain proposé par un partenaire foncier selon disponibilités et autorisation de publicité au prix de 15 155 €. Hors droit d'enregistrement et frais de notaire. Maison proposée, avec un contrat de construction de maison individuelle, dans le cadre de la loi du 19/12/1990, au prix de 130 600 € (Hors branchements et raccordements, papiers peints, peintures, revêtement de sol dans les chambres, qui sont chiffrés dans les travaux qui restent à charge du client. Tarif modifiable sans préavis). Étiquette énergie : A. Différents modèles disponibles pour ce terrain. Assurances et garanties du constructeur comprises (RC professionnelle, décennale, dommage ouvrage).

Contactez l'agence de Châteauroux

02 54 22 66 24

    * Champs obligatoires

    Vos informations sont traitées par HEXAOM et transmises à un conseiller commercial qui vous contactera afin de répondre à votre demande. Les plans et images présentés sur notre site sont la propriété d’HEXAOM et ne peuvent pas être reproduits sans son accord. Pour retrouver notre politique de protection des données personnelles et exercer vos droits conformément à la « loi informatique et liberté » cliquez-ici.