Maison neuve à
Buxières-d'Aillac (36230) Référence : KG2295240_2

Prix du projet : Maison avec Terrain

prix 159 255 €

  • 4 pièces
  • 3 chambres
  • Surface maison 85 m2

Buxières-d'Aillac : maison de 4 pièces (85 m²) à vendre
EMPLACEMENT PRIVILÉGIÉ - MAISON 4 PIÈCES NEUVE
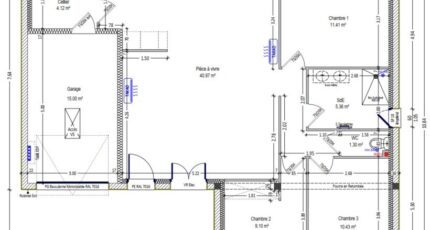
À quelques kilomètres de Châteauroux, Maisons Bruno Petit MJB Châteauroux vous présente cette maison de 4 pièces de plain-pied de 85 m² et de 970 m² de terrain à vendre, bénéficiant d'un emplacement privilégié dans Buxières-d'Aillac (36230). Conçue de plain-pied, elle comporte trois chambres, une cuisine et une salle de bains.
La maison est neuve.
Cette maison est située dans un secteur prisé. L'autoroute A20 est accessible à 15 km. Il y a une bibliothèque à quelques minutes.
Elle est proposée à l'achat pour 159 255 €.
Prenez contact avec notre agence (Kevin GRIMAUD : 06-22-14-89-67) pour plus de renseignements sur le bien, sur les modalités de vente ou sur les démarches à suivre. Donnez vie à vos projets immobiliers avec Maisons Bruno Petit MJB Châteauroux.

Mentions légales

Terrain proposé par un partenaire foncier selon disponibilités et autorisation de publicité au prix de 15 155 €. Hors droit d'enregistrement et frais de notaire. Maison proposée, avec un contrat de construction de maison individuelle, dans le cadre de la loi du 19/12/1990, au prix de 144 100 € (Hors branchements et raccordements, papiers peints, peintures, revêtement de sol dans les chambres, qui sont chiffrés dans les travaux qui restent à charge du client. Tarif modifiable sans préavis). Étiquette énergie : A. Différents modèles disponibles pour ce terrain. Assurances et garanties du constructeur comprises (RC professionnelle, décennale, dommage ouvrage).

Contactez l'agence de Châteauroux

02 54 22 66 24

    * Champs obligatoires

    Vos informations sont traitées par HEXAOM et transmises à un conseiller commercial qui vous contactera afin de répondre à votre demande. Les plans et images présentés sur notre site sont la propriété d’HEXAOM et ne peuvent pas être reproduits sans son accord. Pour retrouver notre politique de protection des données personnelles et exercer vos droits conformément à la « loi informatique et liberté » cliquez-ici.