Maison neuve à
Buxières-d'Aillac (36230) Référence : FR2298721_11

Prix du projet : Maison avec Terrain

prix 215 400 €

  • 3 pièces
  • 2 chambres
  • Surface maison 100 m2

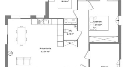
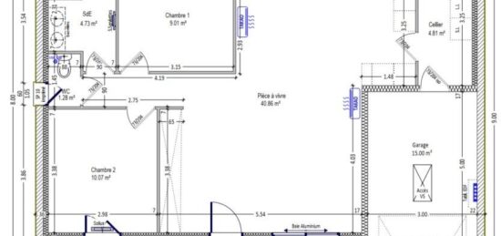
🏡 Maison neuve 5 pièces - 110 m² habitable avec garage - Buxières d'Aillac
📍 À Buxières d'Aillac, dans un quartier résidentiel, découvrez ce projet de maison neuve personnalisable, implanté sur un terrain idéalement situé .
________________________________________
✨ Une maison fonctionnelle et évolutive
De plain-pied, avec combles aménageables, cette maison offre une organisation moderne et confortable :
Entrée avec placard
Vaste séjour lumineux avec cuisine ouverte
2 suites parentales, chacune avec salle d'eau
Deux salles d'eau
WC indépendant
Cellier
Garage
________________________________________
🏗️ Architecture & performance
✨ Design travaillé avec une forme en L élégante
✨ Couverture deux pans
✨ Espaces optimisés, confort au quotidien et excellente performance énergétique
________________________________________
🔧 Prestations de qualité
✔ Chauffage, eau chaude et VMC Atlantic
✔ Volets roulants motorisés et centralisés avec domotique
✔ Sanitaires Jacob Delafon
✔ Portes intérieures gravées
✔ Menuiseries PVC / mixtes / aluminium
✔ Construction conforme à la RE 2020
________________________________________
📜 Projet réalisé sous Contrat de Construction de Maison Individuelle (CCMI - loi de 1990), garantissant une sécurité maximale.
🤝 Maisons Brunon Petit, constructeur local reconnu depuis 47 ans, vous accompagne pour concevoir une maison sur mesure, adaptée à vos attentes et à votre mode de vie.
📞 N'attendez plus !
Contactez Franck RUBIO
📱 06 30 49 64 43 (SMS acceptés)
pour plus d'informations et donner vie à votre projet personnalisé.

Mentions légales

Terrain proposé par un partenaire foncier selon disponibilités et autorisation de publicité au prix de 18 000 €. Hors droit d'enregistrement et frais de notaire. Terrain + Maison proposés au prix de 197 400 € (Hors branchements et raccordements, papiers peints, peintures, revêtement de sol dans les chambres. Tarif modifiable sans préavis). Etiquette énergie : A. Différents modèles disponibles pour ce terrain. Assurances et garanties du constructeur (RC professionnelle, décennale, dommage ouvrage, garantie de remboursement de l'acompte, livraison à prix et délai convenu) : https://www.maisons-brunopetit.fr/mentions-legales/.

Contactez l'agence de Châteauroux

02 54 22 66 24

    * Champs obligatoires

    Vos informations sont traitées par HEXAOM et transmises à un conseiller commercial qui vous contactera afin de répondre à votre demande. Les plans et images présentés sur notre site sont la propriété d’HEXAOM et ne peuvent pas être reproduits sans son accord. Pour retrouver notre politique de protection des données personnelles et exercer vos droits conformément à la « loi informatique et liberté » cliquez-ici.