Maison neuve à
Buzançais (36500) Référence : FR2415274_1

Prix du projet : Maison avec Terrain

prix 164 884 €

  • 3 pièces
  • 2 chambres
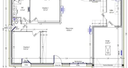
  • Surface maison 70 m2

VENTE : maison T3 (70 m²) à Buzançais
IDÉALEMENT SITUÉE - MAISON 3 PIÈCES NEUVE
En vente : située à deux pas de Châteauroux, ayez le coup de coeur pour cette maison de 3 pièces de plain-pied de 70 m², idéalement située dans Buzançais (36500).
Conçue de plain-pied, elle offre deux chambres, une cuisine et une salle de bains. Cette maison est neuve.
Le terrain du bien s'étend sur 960 m².
Ce bien est situé dans un quartier recherché. On trouve l'École Élémentaire Raoul Janvoie, le Collège Privé Immaculée-Conception, l'École Maternelle la Garenne et l'École Primaire Privée Immaculée-Conception à moins de 10 minutes à pied. On trouve un accès à l'autoroute A20 à 18 km. Il y a un bassin de natation, un tennis, une bibliothèque, trois boulangeries, des commerces, un supermarché, un bureau de poste et deux boucheries-charcuteries à proximité. Enfin, le marché Place de Gaulle a lieu tous les vendredis matin.
Il est proposé à l'achat pour 164 884 €.
Contactez Franck RUBIO (06-30-49-64-43) pour toute question sur la maison, sur les démarches à suivre ou sur les modalités de vente. Concrétisez vos projets immobiliers avec Maisons Bruno Petit MJB Châteauroux.

Mentions légales

Terrain proposé par un partenaire foncier selon disponibilités et autorisation de publicité au prix de 33 984 €. Hors droit d'enregistrement et frais de notaire. Terrain + Maison proposés au prix de 164 884 € (Hors branchements et raccordements, papiers peints, peintures, revêtement de sol dans les chambres. Tarif modifiable sans préavis). Etiquette énergie : A. Différents modèles disponibles pour ce terrain. Assurances et garanties du constructeur (RC professionnelle, décennale, dommage ouvrage, garantie de remboursement de l'acompte, livraison à prix et délai convenu) : https://www.maisons-brunopetit.fr/mentions-legales/.

Contactez l'agence de Châteauroux

02 54 22 66 24

    * Champs obligatoires

    Vos informations sont traitées par HEXAOM et transmises à un conseiller commercial qui vous contactera afin de répondre à votre demande. Les plans et images présentés sur notre site sont la propriété d’HEXAOM et ne peuvent pas être reproduits sans son accord. Pour retrouver notre politique de protection des données personnelles et exercer vos droits conformément à la « loi informatique et liberté » cliquez-ici.