Maison neuve à
Buzançais (36500) Référence : FR2415269_12

Prix du projet : Maison avec Terrain

prix 236 084 €

  • 4 pièces
  • 3 chambres
  • Surface maison 110 m2

Buzançais : maison de 4 pièces (110 m²) à vendre
IDÉALEMENT SITUÉE - MAISON 4 PIÈCES NEUVE
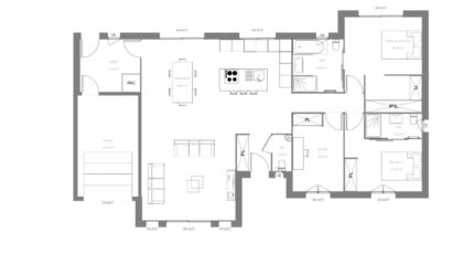
En vente à deux pas de Châteauroux, idéalement située dans Buzançais (36500), notre agence Maisons Bruno Petit MJB Châteauroux est heureuse de vous présenter cette maison de 4 pièces de plain-pied de 110 m² et de 849 m² de terrain.
Conçue de plain-pied, elle propose trois chambres, une cuisine et deux salles de bains. La maison est neuve.
La maison se trouve dans un secteur convoité. Il y a l'École Élémentaire Raoul Janvoie, le Collège Privé Immaculée-Conception, l'École Maternelle la Garenne et l'École Primaire Privée Immaculée-Conception à moins de 10 minutes à pied. Il y a un accès à l'autoroute A20 à 18 km. On trouve un bassin de natation, un tennis, une bibliothèque, trois boulangeries, des commerces, un supermarché, un bureau de poste et deux boucheries-charcuteries à proximité de la maison. Le marché Place de Gaulle anime le quartier chaque vendredi matin.
Elle est proposée à l'achat pour 236 084 €.
Contactez Franck RUBIO (°6-30-49-64-43) pour toute information sur la maison.

Mentions légales

Terrain proposé par un partenaire foncier selon disponibilités et autorisation de publicité au prix de 35 000 €. Hors droit d'enregistrement et frais de notaire. Terrain + Maison proposés au prix de 236 084 € (Hors branchements et raccordements, papiers peints, peintures, revêtement de sol dans les chambres. Tarif modifiable sans préavis). Etiquette énergie : A. Différents modèles disponibles pour ce terrain. Assurances et garanties du constructeur (RC professionnelle, décennale, dommage ouvrage, garantie de remboursement de l'acompte, livraison à prix et délai convenu) : https://www.maisons-brunopetit.fr/mentions-legales/.

Contactez l'agence de Châteauroux

02 54 22 66 24

    * Champs obligatoires

    Vos informations sont traitées par HEXAOM et transmises à un conseiller commercial qui vous contactera afin de répondre à votre demande. Les plans et images présentés sur notre site sont la propriété d’HEXAOM et ne peuvent pas être reproduits sans son accord. Pour retrouver notre politique de protection des données personnelles et exercer vos droits conformément à la « loi informatique et liberté » cliquez-ici.