Maison neuve à
Châteauroux (36000) Référence : KG2296843_1

Prix du projet : Maison avec Terrain

prix 189 580 €

  • 3 pièces
  • 2 chambres
  • Surface maison 70 m2

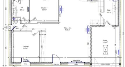
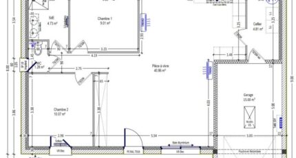
Maison T3 (70 m²) en vente à Châteauroux
QUARTIER RECHERCHÉ - MAISON 3 PIÈCES NEUVE
Maisons Bruno Petit MJB Châteauroux vous propose à vendre, dans un secteur convoité de Châteauroux (36000), cette maison de 3 pièces de plain-pied de 70 m² et de 978 m² de terrain.
Elle est composée de deux chambres, d'une cuisine et d'une salle de bains. La maison est neuve.
La maison se situe dans un quartier attractif. On trouve tous les types d'établissements scolaires (maternelle, élémentaire et secondaire) à moins de 10 minutes à pied, tout comme une structure d'accueil pour la petite enfance. Côté transports, il y a la gare Châteauroux à proximité. L'autoroute A20 et la nationale N151 sont accessibles à moins de 5 km. On trouve une bibliothèque, des boulangeries, des commerces, deux supermarchés, trois boucheries-charcuteries et un bureau de poste dans les environs.
Son prix de vente est de 189 580 €.
Contactez notre agence (GRIMAUD Kevin : 06-22-14-89-67) pour tout renseignement sur la maison, sur les modalités de vente ou sur les démarches à suivre. Faites de vos projets immobiliers une réalité avec Maisons Bruno Petit MJB Châteauroux.

Mentions légales

Terrain proposé par un partenaire foncier selon disponibilités et autorisation de publicité au prix de 58 680 €. Hors droit d'enregistrement et frais de notaire. Terrain + Maison proposés au prix de 130 900 € (Hors branchements et raccordements, papiers peints, peintures, revêtement de sol dans les chambres. Tarif modifiable sans préavis). Etiquette énergie : A. Différents modèles disponibles pour ce terrain. Assurances et garanties du constructeur (RC professionnelle, décennale, dommage ouvrage, garantie de remboursement de l'acompte, livraison à prix et délai convenu) : https://www.maisons-brunopetit.fr/mentions-legales/.

Contactez l'agence de Châteauroux

02 54 22 66 24

    * Champs obligatoires

    Vos informations sont traitées par HEXAOM et transmises à un conseiller commercial qui vous contactera afin de répondre à votre demande. Les plans et images présentés sur notre site sont la propriété d’HEXAOM et ne peuvent pas être reproduits sans son accord. Pour retrouver notre politique de protection des données personnelles et exercer vos droits conformément à la « loi informatique et liberté » cliquez-ici.