Maison neuve à
Châteauroux (36000) Référence : KG2296843_6

Prix du projet : Maison avec Terrain

prix 260 780 €

  • 4 pièces
  • 3 chambres
  • Surface maison 110 m2

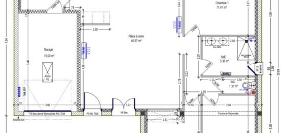
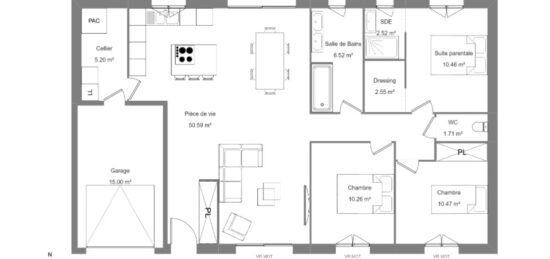
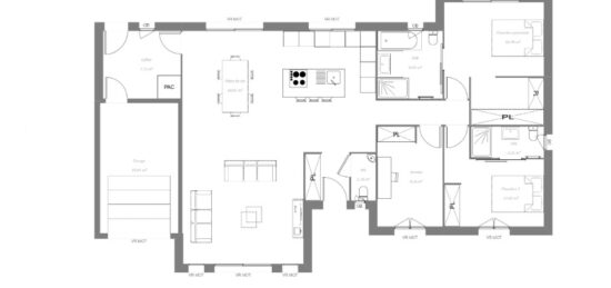
VENTE : maison de 4 pièces (110 m²) à Châteauroux
QUARTIER RECHERCHÉ - MAISON 4 PIÈCES NEUVE
Maisons Bruno Petit MJB Châteauroux vous présente en vente, dans un secteur prisé de Châteauroux (36000), cette maison de 4 pièces de plain-pied de 110 m² et de 978 m² de terrain. Conçue de plain-pied, elle comporte trois chambres, une cuisine et deux salles de bains.
Cette maison est neuve.
La maison est située dans un quartier recherché. On trouve des écoles de tous niveaux (de la maternelle au lycée) à moins de 10 minutes à pied, tout comme une structure d'accueil pour la petite enfance. Niveau transports, il y a la gare Châteauroux dans les environs. L'autoroute A20 et la nationale N151 sont accessibles à moins de 5 km. On trouve une bibliothèque, des boulangeries, des commerces, deux supermarchés, trois boucheries-charcuteries et des épiceries à proximité.
Elle est à vendre pour la somme de 260 780 €.
Contactez notre agence (GRIMAUD Kevin : 06-22-14-89-67) pour tout renseignement sur la maison ou sur les démarches à suivre. Maisons Bruno Petit MJB Châteauroux est là pour vous accompagner à toutes les étapes de l'achat.

Mentions légales

Terrain proposé par un partenaire foncier selon disponibilités et autorisation de publicité au prix de 58 680 €. Hors droit d'enregistrement et frais de notaire. Terrain + Maison proposés au prix de 202 100 € (Hors branchements et raccordements, papiers peints, peintures, revêtement de sol dans les chambres. Tarif modifiable sans préavis). Etiquette énergie : A. Différents modèles disponibles pour ce terrain. Assurances et garanties du constructeur (RC professionnelle, décennale, dommage ouvrage, garantie de remboursement de l'acompte, livraison à prix et délai convenu) : https://www.maisons-brunopetit.fr/mentions-legales/.

Contactez l'agence de Châteauroux

02 54 22 66 24

    * Champs obligatoires

    Vos informations sont traitées par HEXAOM et transmises à un conseiller commercial qui vous contactera afin de répondre à votre demande. Les plans et images présentés sur notre site sont la propriété d’HEXAOM et ne peuvent pas être reproduits sans son accord. Pour retrouver notre politique de protection des données personnelles et exercer vos droits conformément à la « loi informatique et liberté » cliquez-ici.