Maison neuve à
Châteauroux (36000) Référence : KG2296843_8

Prix du projet : Maison avec Terrain

prix 348 680 €

  • 4 pièces
  • 3 chambres
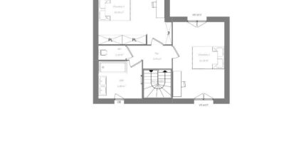
  • Surface maison 110 m2

Châteauroux : maison T4 (110 m²) en vente
QUARTIER RECHERCHÉ - MAISON 4 PIÈCES NEUVE
En vente : située dans un secteur recherché de Châteauroux (36000), nous vous proposons cette maison de 4 pièces de 110 m².
C'est une maison de 2 niveaux. Elle comporte trois chambres, une cuisine et deux salles de bains. La maison est neuve.
Le terrain de la propriété s'étend sur 978 m².
Cette maison se situe dans un quartier attractif. Des écoles de tous niveaux (de la maternelle au lycée) sont implantées à moins de 10 minutes à pied, tout comme une crèche. Côté transports, on trouve la gare Châteauroux dans les environs. L'autoroute A20 et la nationale N151 sont accessibles à moins de 5 km. Il y a une bibliothèque, des boulangeries, des commerces, deux supermarchés, trois boucheries-charcuteries et un bureau de poste à proximité de la maison.
Elle est proposée à l'achat pour 348 680 €.
N'hésitez pas à prendre contact avec Kevin GRIMAUD (tél : 06-22-14-89-67) pour toute information sur la maison ou sur les démarches à suivre. Faites de vos projets immobiliers une réalité avec Maisons Bruno Petit MJB Châteauroux.

Mentions légales

Terrain proposé par un partenaire foncier selon disponibilités et autorisation de publicité au prix de 58 680 €. Hors droit d'enregistrement et frais de notaire. Terrain + Maison proposés au prix de 290 000 € (Hors branchements et raccordements, papiers peints, peintures, revêtement de sol dans les chambres. Tarif modifiable sans préavis). Etiquette énergie : A. Différents modèles disponibles pour ce terrain. Assurances et garanties du constructeur (RC professionnelle, décennale, dommage ouvrage, garantie de remboursement de l'acompte, livraison à prix et délai convenu) : https://www.maisons-brunopetit.fr/mentions-legales/.

Contactez l'agence de Châteauroux

02 54 22 66 24

    * Champs obligatoires

    Vos informations sont traitées par HEXAOM et transmises à un conseiller commercial qui vous contactera afin de répondre à votre demande. Les plans et images présentés sur notre site sont la propriété d’HEXAOM et ne peuvent pas être reproduits sans son accord. Pour retrouver notre politique de protection des données personnelles et exercer vos droits conformément à la « loi informatique et liberté » cliquez-ici.