Maison neuve à
Châteauroux (36000) Référence : KG2296884_5

Prix du projet : Maison avec Terrain

prix 300 820 €

  • 6 pièces
  • 4 chambres
  • Surface maison 120 m2

Châteauroux : maison de 6 pièces (120 m²) à vendre
IDÉALEMENT SITUÉE - MAISON 6 PIÈCES NEUVE
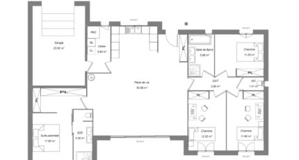
À vendre : venez découvrir cette maison de 6 pièces de plain-pied de 120 m² et de 772 m² de terrain, idéalement située dans Châteauroux (36000). Conçue de plain-pied, elle propose quatre chambres, une cuisine et deux salles de bains.
Cette maison est neuve.
La maison se situe dans un quartier prisé. Des écoles (de la maternelle au lycée) sont implantées à moins de 10 minutes à pied, tout comme une crèche. Niveau transports en commun, il y a la gare Châteauroux juste à côté. L'autoroute A20 et la nationale N151 sont accessibles à moins de 5 km. On trouve une bibliothèque, des boulangeries, des commerces, deux supermarchés, trois boucheries-charcuteries et un bureau de poste dans les environs.
Son prix de vente est de 300 820 €.
Contactez Kevin GRIMAUD (06-22-14-89-67) pour tout renseignement sur la maison ou sur les démarches à suivre.

Mentions légales

Terrain proposé par un partenaire foncier selon disponibilités et autorisation de publicité au prix de 46 320 €. Hors droit d'enregistrement et frais de notaire. Terrain + Maison proposés au prix de 254 500 € (Hors branchements et raccordements, papiers peints, peintures, revêtement de sol dans les chambres. Tarif modifiable sans préavis). Etiquette énergie : A. Différents modèles disponibles pour ce terrain. Assurances et garanties du constructeur (RC professionnelle, décennale, dommage ouvrage, garantie de remboursement de l'acompte, livraison à prix et délai convenu) : https://www.maisons-brunopetit.fr/mentions-legales/.

Contactez l'agence de Châteauroux

02 54 22 66 24

    * Champs obligatoires

    Vos informations sont traitées par HEXAOM et transmises à un conseiller commercial qui vous contactera afin de répondre à votre demande. Les plans et images présentés sur notre site sont la propriété d’HEXAOM et ne peuvent pas être reproduits sans son accord. Pour retrouver notre politique de protection des données personnelles et exercer vos droits conformément à la « loi informatique et liberté » cliquez-ici.