Maison neuve à
Châteauroux (36000) Référence : KG2296884_6

Prix du projet : Maison avec Terrain

prix 330 120 €

  • 5 pièces
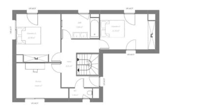
  • 4 chambres
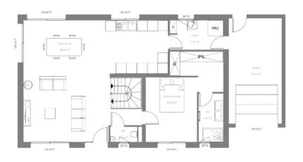
  • Surface maison 120 m2

VENTE d'une maison T5 (120 m²) à Châteauroux
IDÉALEMENT SITUÉE - MAISON 5 PIÈCES NEUVE
Découvrez à vendre, idéalement située dans Châteauroux (36000), cette maison de 5 pièces de 120 m². Son intérieur comporte quatre chambres, une cuisine et deux salles de bains.
Le terrain de la propriété s'étend sur 772 m².
Il s'agit d'une maison de 2 niveaux. Elle est neuve.
La maison se situe dans un secteur prisé. Il y a des écoles de tous niveaux à moins de 10 minutes à pied, tout comme une crèche. Côté transports, on trouve la gare Châteauroux juste à côté. L'autoroute A20 et la nationale N151 sont accessibles à moins de 5 km. Il y a une bibliothèque, des boulangeries, des commerces, deux supermarchés, des épiceries et trois boucheries-charcuteries à proximité de la maison.
Elle est proposée à l'achat pour 330 120 €.
N'hésitez pas à prendre contact avec Kevin GRIMAUD (06-22-14-89-67) pour obtenir de plus amples renseignements sur la maison. Concrétisez vos projets immobiliers avec Maisons Bruno Petit MJB Châteauroux.

Mentions légales

Terrain proposé par un partenaire foncier selon disponibilités et autorisation de publicité au prix de 46 320 €. Hors droit d'enregistrement et frais de notaire. Terrain + Maison proposés au prix de 283 800 € (Hors branchements et raccordements, papiers peints, peintures, revêtement de sol dans les chambres. Tarif modifiable sans préavis). Etiquette énergie : A. Différents modèles disponibles pour ce terrain. Assurances et garanties du constructeur (RC professionnelle, décennale, dommage ouvrage, garantie de remboursement de l'acompte, livraison à prix et délai convenu) : https://www.maisons-brunopetit.fr/mentions-legales/.

Contactez l'agence de Châteauroux

02 54 22 66 24

    * Champs obligatoires

    Vos informations sont traitées par HEXAOM et transmises à un conseiller commercial qui vous contactera afin de répondre à votre demande. Les plans et images présentés sur notre site sont la propriété d’HEXAOM et ne peuvent pas être reproduits sans son accord. Pour retrouver notre politique de protection des données personnelles et exercer vos droits conformément à la « loi informatique et liberté » cliquez-ici.