Maison neuve à
Châteauroux (36000) Référence : KG2296884_7

Prix du projet : Maison avec Terrain

prix 446 320 €

  • 6 pièces
  • 4 chambres
  • Surface maison 180 m2

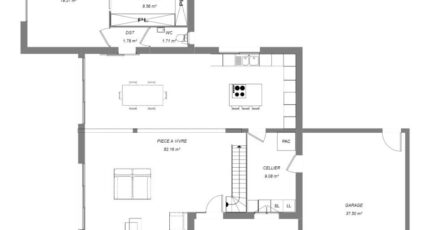
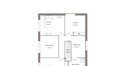
VENTE d'une maison T6 (180 m²) à Châteauroux
IDÉALEMENT SITUÉE - MAISON 6 PIÈCES NEUVE
À vendre : Maisons Bruno Petit MJB Châteauroux vous propose cette maison de 6 pièces de 180 m² idéalement située dans Châteauroux (36000).
Cette maison possède 2 niveaux. Elle se divise en quatre chambres, une cuisine et deux salles de bains. Cette maison est neuve.
Le terrain du bien s'étend sur 772 m².
La propriété se trouve dans un quartier attractif. Il y a des établissements scolaires (de la maternelle au lycée) à moins de 10 minutes à pied, tout comme une structure d'accueil pour les tout-petits. Côté transports en commun, on trouve la gare Châteauroux à quelques pas du bien. L'autoroute A20 et la nationale N151 sont accessibles à moins de 5 km. Il y a une bibliothèque, des boulangeries, des commerces, deux supermarchés, trois boucheries-charcuteries et des épiceries à proximité du logement.
Son prix de vente est de 446 320 €.
Contactez notre agence (GRIMAUD Kevin : 06-22-14-89-67) pour toute information sur la maison, sur les démarches à suivre et sur les modalités de vente.

Mentions légales

Terrain proposé par un partenaire foncier selon disponibilités et autorisation de publicité au prix de 46 320 €. Hors droit d'enregistrement et frais de notaire. Terrain + Maison proposés au prix de 400 000 € (Hors branchements et raccordements, papiers peints, peintures, revêtement de sol dans les chambres. Tarif modifiable sans préavis). Etiquette énergie : A. Différents modèles disponibles pour ce terrain. Assurances et garanties du constructeur (RC professionnelle, décennale, dommage ouvrage, garantie de remboursement de l'acompte, livraison à prix et délai convenu) : https://www.maisons-brunopetit.fr/mentions-legales/.

Contactez l'agence de Châteauroux

02 54 22 66 24

    * Champs obligatoires

    Vos informations sont traitées par HEXAOM et transmises à un conseiller commercial qui vous contactera afin de répondre à votre demande. Les plans et images présentés sur notre site sont la propriété d’HEXAOM et ne peuvent pas être reproduits sans son accord. Pour retrouver notre politique de protection des données personnelles et exercer vos droits conformément à la « loi informatique et liberté » cliquez-ici.