Maison neuve à
Châteauroux (36000) Référence : TM2290554_1

Prix du projet : Maison avec Terrain

prix 174 980 €

  • 4 pièces
  • 3 chambres
  • Surface maison 85 m2

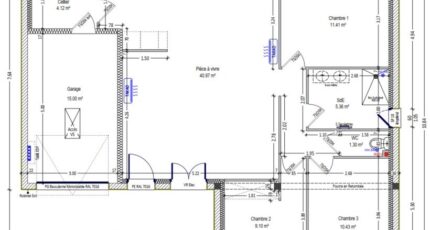
VENTE : maison F4 (85 m²) à Châteauroux
EMPLACEMENT PRIVILÉGIÉ - MAISON 4 PIÈCES NEUVE
Nous vous proposons en vente, bénéficiant d'un emplacement d'exception dans Châteauroux (36000), cette maison de 4 pièces de plain-pied de 85 m² et de 700 m² de terrain. Elle dispose de trois chambres, d'une cuisine et d'une salle de bains.
Cette maison est neuve.
La maison se trouve dans un secteur convoité. Il y a des écoles du primaire et du secondaire à moins de 10 minutes à pied, tout comme une crèche. Côté transports, on trouve la gare Châteauroux juste à côté. L'autoroute A20 et la nationale N151 sont accessibles à moins de 5 km. Il y a une bibliothèque, des boulangeries, des commerces, deux supermarchés, un bureau de poste et des épiceries dans les environs.
Elle est à vendre pour la somme de 174 980 €.
Contactez Thomas MANIERE (06-15-51-71-54) pour plus de renseignements sur la propriété, sur les démarches à suivre ou sur les modalités de vente. Maisons Bruno Petit MJB Châteauroux est là pour vous accompagner dans tous vos projets immobiliers.

Mentions légales

Terrain proposé par un partenaire foncier selon disponibilités et autorisation de publicité au prix de 44 123 €. Hors droit d'enregistrement et frais de notaire. Terrain + Maison proposés au prix de 130 857 € (Hors branchements et raccordements, papiers peints, peintures, revêtement de sol dans les chambres. Tarif modifiable sans préavis). Etiquette énergie : A. Différents modèles disponibles pour ce terrain. Assurances et garanties du constructeur (RC professionnelle, décennale, dommage ouvrage, garantie de remboursement de l'acompte, livraison à prix et délai convenu) : https://www.maisons-brunopetit.fr/mentions-legales/.

Contactez l'agence de Châteauroux

02 54 22 66 24

    * Champs obligatoires

    Vos informations sont traitées par HEXAOM et transmises à un conseiller commercial qui vous contactera afin de répondre à votre demande. Les plans et images présentés sur notre site sont la propriété d’HEXAOM et ne peuvent pas être reproduits sans son accord. Pour retrouver notre politique de protection des données personnelles et exercer vos droits conformément à la « loi informatique et liberté » cliquez-ici.