Maison neuve à
Châteauroux (36000) Référence : TM2309572_3

Prix du projet : Maison avec Terrain

prix 182 100 €

  • 4 pièces
  • 3 chambres
  • Surface maison 85 m2

Châteauroux : maison de 4 pièces (85 m²) en vente
MAISON 4 PIÈCES NEUVE
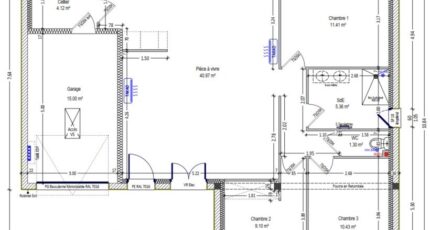
En vente à Châteauroux (36000), votre agence Maisons Bruno Petit MJB Châteauroux est ravie de vous présenter cette maison de 4 pièces de plain-pied de 85 m² et de 520 m² de terrain. Conçue de plain-pied, elle compte trois chambres, une cuisine et une salle de bains.
Cette maison est neuve.
Tous les types d'établissements scolaires (de la maternelle au lycée) sont implantés à moins de 10 minutes à pied, tout comme une structure d'accueil pour les tout-petits. Niveau transports, on trouve la gare Châteauroux à proximité. L'autoroute A20 et la nationale N151 sont accessibles à moins de 5 km. Il y a une bibliothèque, des boulangeries, des commerces, deux supermarchés, trois boucheries-charcuteries et un bureau de poste dans les environs.
Elle est proposée à l'achat pour 182 100 €.
Contactez Thomas MANIERE (tél : 06-15-51-71-54) pour toute information sur cette maison.

Mentions légales

Terrain proposé par un partenaire foncier selon disponibilités et autorisation de publicité au prix de 38 000 €. Hors droit d'enregistrement et frais de notaire. Terrain + Maison proposés au prix de 144 100 € (Hors branchements et raccordements, papiers peints, peintures, revêtement de sol dans les chambres. Tarif modifiable sans préavis). Etiquette énergie : A. Différents modèles disponibles pour ce terrain. Assurances et garanties du constructeur (RC professionnelle, décennale, dommage ouvrage, garantie de remboursement de l'acompte, livraison à prix et délai convenu) : https://www.maisons-brunopetit.fr/mentions-legales/.

Contactez l'agence de Châteauroux

02 54 22 66 24

    * Champs obligatoires

    Vos informations sont traitées par HEXAOM et transmises à un conseiller commercial qui vous contactera afin de répondre à votre demande. Les plans et images présentés sur notre site sont la propriété d’HEXAOM et ne peuvent pas être reproduits sans son accord. Pour retrouver notre politique de protection des données personnelles et exercer vos droits conformément à la « loi informatique et liberté » cliquez-ici.