Maison neuve à
Châteauroux (36000) Référence : FR2329644_11

Prix du projet : Maison avec Terrain

prix 353 115 €

  • 4 pièces
  • 3 chambres
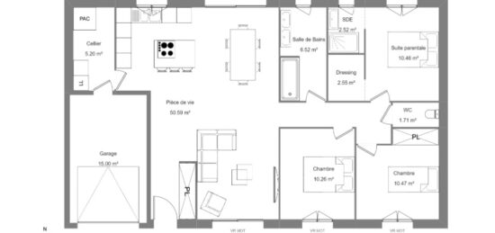
  • Surface maison 110 m2

Maison neuve 5 pièces - 115 m² habitable - Châteauroux
📍 À proximité de Châteauroux, sur Châteauroux, découvrez ce projet de maison neuve de 115 m² habitables, généreuse par ses volumes et confortable grâce à ses différents lieux de vie destinés à chacun.
Cette maison est proposée sur un terrain situé à proximité des réseaux de bus 🚌.
✨Personnalisez votre plan

✨la maison présente un design travaillé composé de multi niveaux, d'un ensemble couvert en toit terrasse et couverture 2 pans.
✨Sa finition extérieure contemporaine est personnalisable avec des menuiseries de couleur.
✨Double garage spacieux
✨ La maison offre un espace optimisé, un confort au quotidien et une excellente performance énergétique.
🔧 Prestations de qualité :
✔ Chauffage, eau chaude et VMC Atlantic
✔ Volets roulants motorisés et centralisés avec domotique
✔ Sanitaires Jacob Delafon
✔ Portes intérieures gravées
✔ Menuiseries PVC / mixtes / aluminium
✔ Construction conforme RE 2020
📜 Projet réalisé sous Contrat de Construction (CCMI - loi de 1990) pour une sécurité maximale.
🤝 Maisons Brunon Petit, constructeur local depuis 47 ans, vous accompagne pour concevoir votre maison selon vos attentes.
📞 N'attendez plus et Contactez Franck RUBIO (°630496443) pour plus d'informations et créez votre projet personnalisé. Sms acceptés

Mentions légales

Terrain proposé par un partenaire foncier selon disponibilités et autorisation de publicité au prix de 63 115 €. Hors droit d'enregistrement et frais de notaire. Terrain + Maison proposés au prix de 290 000 € (Hors branchements et raccordements, papiers peints, peintures, revêtement de sol dans les chambres. Tarif modifiable sans préavis). Etiquette énergie : A. Différents modèles disponibles pour ce terrain. Assurances et garanties du constructeur (RC professionnelle, décennale, dommage ouvrage, garantie de remboursement de l'acompte, livraison à prix et délai convenu) : https://www.maisons-brunopetit.fr/mentions-legales/.

Contactez l'agence de Châteauroux

02 54 22 66 24

    * Champs obligatoires

    Vos informations sont traitées par HEXAOM et transmises à un conseiller commercial qui vous contactera afin de répondre à votre demande. Les plans et images présentés sur notre site sont la propriété d’HEXAOM et ne peuvent pas être reproduits sans son accord. Pour retrouver notre politique de protection des données personnelles et exercer vos droits conformément à la « loi informatique et liberté » cliquez-ici.