Maison neuve à
Châteauroux (36000) Référence : KG2296843_10

Prix du projet : Maison avec Terrain

prix 321 200 €

  • 5 pièces
  • 4 chambres
  • Surface maison 140 m2

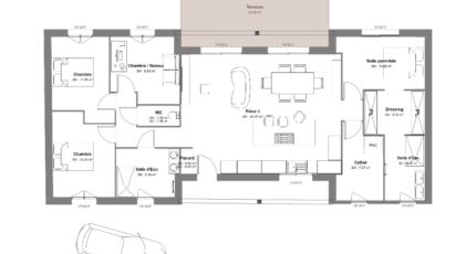
VENTE d'une maison de 5 pièces (140 m²) à Châteauroux
QUARTIER RECHERCHÉ - MAISON 5 PIÈCES NEUVE
À vendre : Maisons Bruno Petit MJB Châteauroux vous présente, construite dans un quartier prisé de Châteauroux (36000), cette maison de 5 pièces de plain-pied de 140 m² et de 978 m² de terrain.
Son intérieur comporte quatre chambres, une cuisine et deux salles de bains. La maison est neuve.
Cette maison est située dans un secteur recherché. On trouve des écoles de tous niveaux à moins de 10 minutes à pied, tout comme une structure d'accueil pour les tout-petits. Niveau transports en commun, il y a la gare Châteauroux à proximité. L'autoroute A20 et la nationale N151 sont accessibles à moins de 5 km. On trouve une bibliothèque, des boulangeries, des commerces, deux supermarchés, trois boucheries-charcuteries et un bureau de poste dans les environs.
Elle est proposée à l'achat pour 321 200 €.
N'hésitez pas à prendre contact avec Kevin GRIMAUD (tél : *6-22-14-89-67) pour toute question sur la propriété.

Mentions légales

Terrain proposé par un partenaire foncier selon disponibilités et autorisation de publicité au prix de 58 680 €. Hors droit d'enregistrement et frais de notaire. Terrain + Maison proposés au prix de 262 520 € (Hors branchements et raccordements, papiers peints, peintures, revêtement de sol dans les chambres. Tarif modifiable sans préavis). Etiquette énergie : A. Différents modèles disponibles pour ce terrain. Assurances et garanties du constructeur (RC professionnelle, décennale, dommage ouvrage, garantie de remboursement de l'acompte, livraison à prix et délai convenu) : https://www.maisons-brunopetit.fr/mentions-legales/.

Contactez l'agence de Châteauroux

02 54 22 66 24

    * Champs obligatoires

    Vos informations sont traitées par HEXAOM et transmises à un conseiller commercial qui vous contactera afin de répondre à votre demande. Les plans et images présentés sur notre site sont la propriété d’HEXAOM et ne peuvent pas être reproduits sans son accord. Pour retrouver notre politique de protection des données personnelles et exercer vos droits conformément à la « loi informatique et liberté » cliquez-ici.