Maison neuve à
Châteauroux (36000) Référence : KG2296843_9

Prix du projet : Maison avec Terrain

prix 315 680 €

  • 5 pièces
  • 4 chambres
  • Surface maison 120 m2

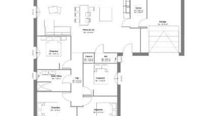
VENTE d'une maison T5 (120 m²) à Châteauroux
QUARTIER RECHERCHÉ - MAISON 5 PIÈCES NEUVE
À vendre : Maisons Bruno Petit MJB Châteauroux vous présente, située dans un quartier recherché de Châteauroux (36000), cette maison de 5 pièces de plain-pied de 120 m² et de 978 m² de terrain. Son intérieur propose quatre chambres, une cuisine et une salle de bains.
La maison est neuve.
La maison se situe dans un secteur attractif. Il y a tous les types d'écoles (maternelle, élémentaire et secondaire) à moins de 10 minutes à pied, tout comme une crèche. Côté transports, on trouve la gare Châteauroux à quelques pas de la maison. L'autoroute A20 et la nationale N151 sont accessibles à moins de 5 km. Il y a une bibliothèque, des boulangeries, des commerces, deux supermarchés, un bureau de poste et des épiceries à proximité.
Elle est à vendre pour la somme de 315 680 €.
Contactez notre agence (GRIMAUD Kevin : *6-22-14-89-67) pour toute information sur la maison, sur les démarches à suivre ou sur les modalités de vente. Maisons Bruno Petit MJB Châteauroux est là pour vous accompagner dans tous vos projets immobiliers.

Mentions légales

Terrain proposé par un partenaire foncier selon disponibilités et autorisation de publicité au prix de 58 680 €. Hors droit d'enregistrement et frais de notaire. Terrain + Maison proposés au prix de 257 000 € (Hors branchements et raccordements, papiers peints, peintures, revêtement de sol dans les chambres. Tarif modifiable sans préavis). Etiquette énergie : A. Différents modèles disponibles pour ce terrain. Assurances et garanties du constructeur (RC professionnelle, décennale, dommage ouvrage, garantie de remboursement de l'acompte, livraison à prix et délai convenu) : https://www.maisons-brunopetit.fr/mentions-legales/.

Contactez l'agence de Châteauroux

02 54 22 66 24

    * Champs obligatoires

    Vos informations sont traitées par HEXAOM et transmises à un conseiller commercial qui vous contactera afin de répondre à votre demande. Les plans et images présentés sur notre site sont la propriété d’HEXAOM et ne peuvent pas être reproduits sans son accord. Pour retrouver notre politique de protection des données personnelles et exercer vos droits conformément à la « loi informatique et liberté » cliquez-ici.