Maison neuve à
Châteauroux (36000) Référence : KG2360502_1

Prix du projet : Maison avec Terrain

prix 329 850 €

  • 5 pièces
  • 4 chambres
  • Surface maison 120 m2

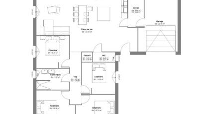
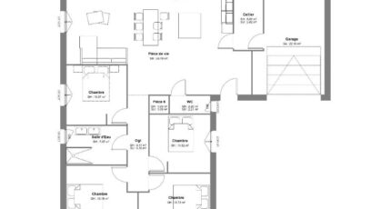
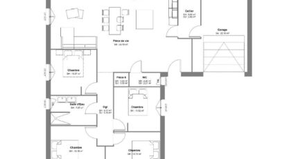
Maison de 5 pièces (120 m²) à vendre à Châteauroux
EMPLACEMENT PRIVILÉGIÉ - MAISON 5 PIÈCES NEUVE
Nous sommes ravis de vous proposer à vendre, bénéficiant d'un emplacement privilégié dans Châteauroux (36000), cette maison de 5 pièces de plain-pied de 120 m² et de 750 m² de terrain.
Son intérieur propose quatre chambres, une cuisine et une salle de bains. Cette maison est neuve.
La maison se trouve dans un secteur convoité. Il y a des établissements scolaires (de la maternelle au lycée) à moins de 10 minutes à pied, tout comme une structure d'accueil pour les enfants en bas âge. Niveau transports en commun, on trouve la gare Châteauroux dans les alentours. L'autoroute A20 et la nationale N151 sont accessibles à moins de 5 km. Il y a une bibliothèque, des boulangeries, des commerces, deux supermarchés, trois boucheries-charcuteries et des épiceries à quelques minutes à peine.
Elle est à vendre pour la somme de 329 850 €.
Contactez notre agence (Kevin GRIMAUD : *6-22-14-89-67) pour toute question sur la maison, sur les modalités de vente ou sur les démarches à suivre. Maisons Bruno Petit MJB Châteauroux vous accompagne dans tous vos projets immobiliers et à toutes les étapes de votre projet.

Mentions légales

Terrain proposé par un partenaire foncier selon disponibilités et autorisation de publicité au prix de 45 000 €. Hors droit d'enregistrement et frais de notaire. Terrain + Maison proposés au prix de 284 850 € (Hors branchements et raccordements, papiers peints, peintures, revêtement de sol dans les chambres. Tarif modifiable sans préavis). Etiquette énergie : A. Différents modèles disponibles pour ce terrain. Assurances et garanties du constructeur (RC professionnelle, décennale, dommage ouvrage, garantie de remboursement de l'acompte, livraison à prix et délai convenu) : https://www.maisons-brunopetit.fr/mentions-legales/.

Contactez l'agence de Châteauroux

02 54 22 66 24

    * Champs obligatoires

    Vos informations sont traitées par HEXAOM et transmises à un conseiller commercial qui vous contactera afin de répondre à votre demande. Les plans et images présentés sur notre site sont la propriété d’HEXAOM et ne peuvent pas être reproduits sans son accord. Pour retrouver notre politique de protection des données personnelles et exercer vos droits conformément à la « loi informatique et liberté » cliquez-ici.