Maison neuve à
Châteauroux (36000) Référence : KG2360502_2

Prix du projet : Maison avec Terrain

prix 264 750 €

  • 4 pièces
  • 4 chambres
  • Surface maison 140 m2

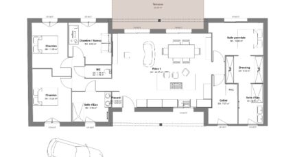
Maison de 4 pièces (140 m²) en vente à Châteauroux
EMPLACEMENT PRIVILÉGIÉ - MAISON 4 PIÈCES NEUVE
À vendre : bénéficiant d'un emplacement privilégié dans Châteauroux (36000), nous sommes ravis de vous proposer cette maison de 4 pièces de plain-pied de 140 m². Conçue de plain-pied, elle compte quatre chambres, une cuisine et deux salles de bains.
Le terrain du bien est de 750 m².
La maison est neuve.
La maison se trouve dans un secteur convoité. Des écoles du primaire et du secondaire sont implantées à moins de 10 minutes à pied, tout comme une crèche. Niveau transports en commun, il y a la gare Châteauroux dans un rayon de 1 km. L'autoroute A20 et la nationale N151 sont accessibles à moins de 5 km. On trouve une bibliothèque, des boulangeries, des commerces, deux supermarchés, un bureau de poste et des épiceries à proximité.
Son prix de vente est de 264 750 €.
Contactez notre agence (Kevin GRIMAUD : *6-22-14-89-67) pour plus de renseignements sur la maison, sur les modalités de vente ou sur les démarches à suivre. Concrétisez vos projets immobiliers avec Maisons Bruno Petit MJB Châteauroux.

Mentions légales

Terrain proposé par un partenaire foncier selon disponibilités et autorisation de publicité au prix de 45 000 €. Hors droit d'enregistrement et frais de notaire. Terrain + Maison proposés au prix de 219 750 € (Hors branchements et raccordements, papiers peints, peintures, revêtement de sol dans les chambres. Tarif modifiable sans préavis). Etiquette énergie : A. Différents modèles disponibles pour ce terrain. Assurances et garanties du constructeur (RC professionnelle, décennale, dommage ouvrage, garantie de remboursement de l'acompte, livraison à prix et délai convenu) : https://www.maisons-brunopetit.fr/mentions-legales/.

Contactez l'agence de Châteauroux

02 54 22 66 24

    * Champs obligatoires

    Vos informations sont traitées par HEXAOM et transmises à un conseiller commercial qui vous contactera afin de répondre à votre demande. Les plans et images présentés sur notre site sont la propriété d’HEXAOM et ne peuvent pas être reproduits sans son accord. Pour retrouver notre politique de protection des données personnelles et exercer vos droits conformément à la « loi informatique et liberté » cliquez-ici.