Maison neuve à
Châteauroux (36000) Référence : KG2360502_8

Prix du projet : Maison avec Terrain

prix 247 500 €

  • 4 pièces
  • 3 chambres
  • Surface maison 110 m2

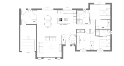
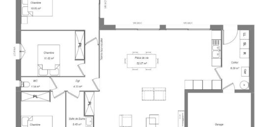
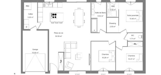
Châteauroux : maison F4 (110 m²) en vente
EMPLACEMENT PRIVILÉGIÉ - MAISON 4 PIÈCES NEUVE
Nous vous proposons en vente, bénéficiant d'un emplacement privilégié dans Châteauroux (36000), cette maison de 4 pièces de plain-pied de 110 m². Elle compte trois chambres, une cuisine et deux salles de bains.
Le terrain du bien s'étend sur 750 m².
La maison est neuve.
La maison se trouve dans un secteur convoité. Tous les types d'établissements scolaires sont implantés à moins de 10 minutes à pied, tout comme une structure d'accueil pour les tout-petits. Niveau transports en commun, on trouve la gare Châteauroux dans un rayon de 1 km. L'autoroute A20 et la nationale N151 sont accessibles à moins de 5 km. Il y a une bibliothèque, des boulangeries, des commerces, deux supermarchés, un bureau de poste et des épiceries à quelques minutes.
Son prix de vente est de 247 500 €.
Contactez notre agence (Kevin GRIMAUD : *6-22-14-89-67) pour obtenir de plus amples informations sur la maison ou sur les démarches à suivre.

Mentions légales

Terrain proposé par un partenaire foncier selon disponibilités et autorisation de publicité au prix de 45 000 €. Hors droit d'enregistrement et frais de notaire. Terrain + Maison proposés au prix de 202 500 € (Hors branchements et raccordements, papiers peints, peintures, revêtement de sol dans les chambres. Tarif modifiable sans préavis). Etiquette énergie : A. Différents modèles disponibles pour ce terrain. Assurances et garanties du constructeur (RC professionnelle, décennale, dommage ouvrage, garantie de remboursement de l'acompte, livraison à prix et délai convenu) : https://www.maisons-brunopetit.fr/mentions-legales/.

Contactez l'agence de Châteauroux

02 54 22 66 24

    * Champs obligatoires

    Vos informations sont traitées par HEXAOM et transmises à un conseiller commercial qui vous contactera afin de répondre à votre demande. Les plans et images présentés sur notre site sont la propriété d’HEXAOM et ne peuvent pas être reproduits sans son accord. Pour retrouver notre politique de protection des données personnelles et exercer vos droits conformément à la « loi informatique et liberté » cliquez-ici.