Maison neuve à
Châteauroux (36000) Référence : KG2360514_4

Prix du projet : Maison avec Terrain

prix 277 500 €

  • 4 pièces
  • 4 chambres
  • Surface maison 140 m2

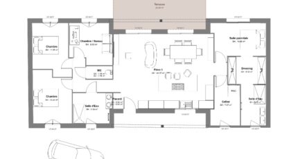
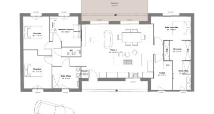
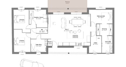
VENTE d'une maison de 4 pièces (140 m²) à Châteauroux
EMPLACEMENT PRIVILÉGIÉ - MAISON 4 PIÈCES NEUVE
En vente : bénéficiant d'un emplacement privilégié dans Châteauroux (36000), nous vous présentons cette maison de 4 pièces de plain-pied de 140 m². Conçue de plain-pied, elle compte quatre chambres, une cuisine et deux salles de bains.
Le terrain du bien est de 1 125 m².
Cette maison est neuve.
Cette maison est située dans un secteur attractif. Des écoles de tous niveaux se trouvent à moins de 10 minutes à pied, tout comme une structure d'accueil pour les enfants en bas âge. Côté transports, il y a la gare Châteauroux à quelques pas du bien. L'autoroute A20 et la nationale N151 sont accessibles à moins de 5 km. On trouve une bibliothèque, des boulangeries, des commerces, deux supermarchés, un bureau de poste et trois boucheries-charcuteries à quelques minutes de la maison.
Elle est à vendre pour la somme de 277 500 €.
Contactez notre agence (GRIMAUD Kevin : *6-22-14-89-67) pour obtenir de plus amples renseignements sur la propriété, sur les démarches à suivre ou sur les modalités de vente. Donnez vie à vos projets immobiliers avec Maisons Bruno Petit MJB Châteauroux.

Mentions légales

Terrain proposé par un partenaire foncier selon disponibilités et autorisation de publicité au prix de 67 500 €. Hors droit d'enregistrement et frais de notaire. Terrain + Maison proposés au prix de 210 000 € (Hors branchements et raccordements, papiers peints, peintures, revêtement de sol dans les chambres. Tarif modifiable sans préavis). Etiquette énergie : A. Différents modèles disponibles pour ce terrain. Assurances et garanties du constructeur (RC professionnelle, décennale, dommage ouvrage, garantie de remboursement de l'acompte, livraison à prix et délai convenu) : https://www.maisons-brunopetit.fr/mentions-legales/.

Contactez l'agence de Châteauroux

02 54 22 66 24

    * Champs obligatoires

    Vos informations sont traitées par HEXAOM et transmises à un conseiller commercial qui vous contactera afin de répondre à votre demande. Les plans et images présentés sur notre site sont la propriété d’HEXAOM et ne peuvent pas être reproduits sans son accord. Pour retrouver notre politique de protection des données personnelles et exercer vos droits conformément à la « loi informatique et liberté » cliquez-ici.