Maison neuve à
Châteauroux (36000) Référence : KG2360514_5

Prix du projet : Maison avec Terrain

prix 269 950 €

  • 5 pièces
  • 4 chambres
  • Surface maison 120 m2

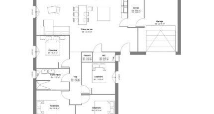
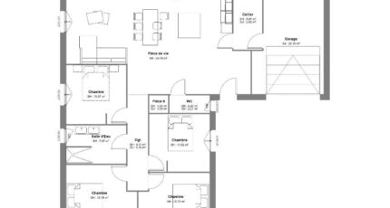
VENTE d'une maison F5 (120 m²) à Châteauroux
EMPLACEMENT PRIVILÉGIÉ - MAISON 5 PIÈCES NEUVE
Votre agence Maisons Bruno Petit MJB Châteauroux est ravie de vous présenter à vendre, bénéficiant d'un emplacement privilégié dans Châteauroux (36000), cette maison de 5 pièces de plain-pied de 120 m² et de 1 125 m² de terrain.
Son intérieur comporte quatre chambres, une cuisine et une salle de bains. Cette maison est neuve.
La maison est située dans un quartier recherché. On trouve des écoles de tous niveaux (de la maternelle au lycée) à moins de 10 minutes à pied, tout comme une structure d'accueil pour les enfants en bas âge. Côté transports, il y a la gare Châteauroux à quelques pas du bien. L'autoroute A20 et la nationale N151 sont accessibles à moins de 5 km. On trouve une bibliothèque, des boulangeries, des commerces, deux supermarchés, des épiceries et trois boucheries-charcuteries à quelques minutes à peine.
Elle est à vendre pour la somme de 269 950 €.
Contactez notre constructeur (Kevin GRIMAUD : *6-22-14-89-67) pour plus d'informations sur la maison, sur les démarches à suivre ou sur les modalités de vente. Maisons Bruno Petit MJB Châteauroux vous accompagne à toutes les étapes de l'achat et dans tous vos projets immobiliers.

Mentions légales

Terrain proposé par un partenaire foncier selon disponibilités et autorisation de publicité au prix de 67 500 €. Hors droit d'enregistrement et frais de notaire. Terrain + Maison proposés au prix de 202 450 € (Hors branchements et raccordements, papiers peints, peintures, revêtement de sol dans les chambres. Tarif modifiable sans préavis). Etiquette énergie : A. Différents modèles disponibles pour ce terrain. Assurances et garanties du constructeur (RC professionnelle, décennale, dommage ouvrage, garantie de remboursement de l'acompte, livraison à prix et délai convenu) : https://www.maisons-brunopetit.fr/mentions-legales/.

Contactez l'agence de Châteauroux

02 54 22 66 24

    * Champs obligatoires

    Vos informations sont traitées par HEXAOM et transmises à un conseiller commercial qui vous contactera afin de répondre à votre demande. Les plans et images présentés sur notre site sont la propriété d’HEXAOM et ne peuvent pas être reproduits sans son accord. Pour retrouver notre politique de protection des données personnelles et exercer vos droits conformément à la « loi informatique et liberté » cliquez-ici.